PROPERTY DETAILS

E's garden 北名古屋市高田寺Ⅲ

お気に入り物件に追加

対象となる世帯については条件がございます。
また、本事業は予算達し次第終了となります。
詳しくは担当者までお問い合わせください。

お気に入り物件に追加

E's garden 北名古屋市高田寺Ⅲ

棟を選択

E

F

G

H

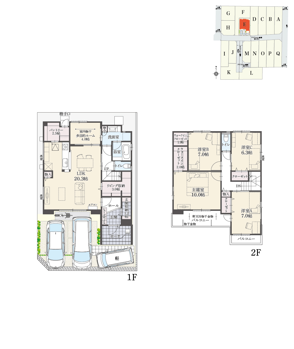
E 棟 3,980万円(税込)

  • 間取り:4LDK+ 多目的ルーム+ Wウォークインクローゼット+ 玄関収納+ リビング収納+ パントリー
  • 駐車: 3台分
  • 土地面積: 136.73m2(41.36坪)
  • 建物面積: 135.57m2(41.00坪)
  • 建築物省エネ法に基づく建築物の省エネ性能ラベルとなります。

  • 【E棟 LDK】 キッチンからはリビング全体を見渡すことができます。お料理をしながらでもお子様を見守ることができるため安心です。

  • 【E棟 キッチン】 パナソニック製の人造大理石のキッチンです。収納力もばっちりで、2口のコンセント付きです。キッチンカウンターでコーヒーメーカーやハンドミキサーも使用できます。

  • 【E棟 主寝室】 一日の疲れを癒すくつろぎの10帖以上の主寝室。寝るだけでなく、趣味の空間としてセカンドリビングとしても使えます。

  • 【E棟 洋室A】 大きな窓は明るさや開放感、風通しなどを確保できます。子供部屋としてはもちろん、奥様の趣味の部屋、ご主人様の書斎、ご家族で楽しめるゲームルームとしても◎

  • 【E棟 バルコニー】 広々とした南側のバルコニーでは一度にたくさんの洗濯物を干すことができます。

  • 【E棟 洗面室】 ワイドな900mmの洗面台に、奥行きしっかりの収納+壁備え付けの収納です。洗面所をできるだけ広く使えるようたくさん収納を取り入れています。朝の混雑時にもゆとりある空間です。

  • 【E棟 浴室】 TOTO製1717サイズです。一坪の広いお風呂で楽しいバスタイムを♪お仕事で疲れた身体も足を伸ばしてくつろげます!! しかも浴室暖房乾燥機付きです!

  • 【E棟 WIC】 主寝室のウォークインクローゼットは2帖の広さが標準仕様です。上部の棚にはバッグ、ハンガーパイプにはお洋服など大切に収納することができます。

  • 【E棟 リビング収納】 3帖の広さのリビング収納には、掃除用具から扇風機、ストーブなどの季節のもの、お子様のおもちゃ、教材などあらゆるものを収納することができます

  • 【E棟 玄関収納】 全棟標準で付いています。 車関連や掃除道具だけでなく、ベビーカーやお子さまの遊び道具、趣味の用具等を収納できます。

  • 建築物省エネ法に基づく建築物の省エネ性能ラベルとなります。

  • 【E棟 LDK】 キッチンからはリビング全体を見渡すことができます。お料理をしながらでもお子様を見守ることができるため安心です。

パノラマビュー

物件の特長

  • 名駅ラクラク通勤
  • 2階建
  • 駐車場3台以上
  • オール電化(IHコンロ・リビングエアコン付)
  • リビングアップスルー階段
  • 玄関収納付き
  • パントリーのある家
  • リビングまたは多目的収納
  • 今すぐ引っ越し可能

区画図

区画・間取り H[046974KKD3] G[046974KKD3] F[046974KKD3] E[046974KKD3]

詳細

※横にスクロールできます。

間取り 販売価格 駐車 土地面積 建物面積 販売状況
E 4LDK
多目的ルーム
Wウォークインクローゼット
玄関収納
リビング収納
パントリー
3,980万円
(税込)
3台分
136.73m2
(41.36坪)
135.57m2
(41.00坪)
販売中
F 5LDK
Wウォークインクローゼット
玄関収納
パントリー
3,780万円
(税込)
3台分
178.89m2
(54.11坪)
135.23m2
(40.90坪)
販売中
G 5LDK
ウォークインクローゼット
玄関収納
コートクローク
パントリー
3,930万円
(税込)
3台分
141.07m2
(42.67坪)
135.47m2
(40.97坪)
販売中
H 5LDK
Wウォークインクローゼット
玄関収納
コートクローク
パントリー
4,080万円
(税込)
3台分
140.76m2
(42.57坪)
135.52m2
(40.99坪)
販売中

アクセス

周辺施設

交通

  • 名鉄バス「砂場」停

    名鉄バス「砂場」停

    約400m  徒歩約5分

  • 名鉄犬山線「西春」駅

    名鉄犬山線「西春」駅

    約2,700m  自転車約11分

  • 名古屋市営バス「喜惣治一丁目」停

    名古屋市営バス「喜惣治一丁目」停

    約1,340m  自転車約6分

教育施設

  • 久地野保育園

    久地野保育園

    約810m
    徒歩約11分
    自転車約4分

  • 久地野保育園分園

    久地野保育園分園

    約1,000m
    徒歩約13分
    自転車約4分

  • 栄和幼稚園

    栄和幼稚園

    約1,250m
    徒歩約16分
    自転車約5分

  • 師勝南小学校

    師勝南小学校

    約1,070m  徒歩約14分

  • 訓原中学校

    訓原中学校

    約1,220m  徒歩約16分

買い物

  • ナフコトミダ 師勝店

    ナフコトミダ 師勝店

    約660m
    徒歩約9分
    自転車約3分

  • サンドラッグ 久地野店

    サンドラッグ 久地野店

    約580m
    徒歩約8分
    自転車約3分

病院

  • 田中クリニック

    田中クリニック

    約440m
    徒歩約6分
    自転車約2分

  • よしの耳鼻咽喉科

    よしの耳鼻咽喉科

    約860m
    徒歩約11分
    自転車約4分

公共施設

  • 北名古屋市役所 東庁舎

    北名古屋市役所 東庁舎

    約1,950m  自転車約8分 車約3分

その他

  • 大垣共立銀行 師勝支店

    大垣共立銀行 師勝支店

    約910m
    徒歩約12分
    自転車約4分

玄関

外構工事

外構工事

植栽・生垣などを施した外構工事により、緑あふれる自然景観を楽しむ生活を演出。(当社施工実績)
【宅配ボックス】全棟標準設置です。
※物件により一部仕様が異なる場合がございます。

  • 宅配ボックス

    外出時も荷物の受け取りが可能な宅配ボックスを標準設置。毎日の暮らしにゆとりをもたらすプラスワン設備です。

  • スマートロックシステム

    専用アプリをインストールすれば、スマートフォンが専用キーに早変わり。スマートフォンを取り出さずにカギを施錠解錠したり、アプリ操作で施錠解錠できます。

  • 人感センサーLEDポーチ灯

    暗くなると自動点灯でお出迎え。深夜は人が近づいた時だけ点灯し防犯対策に役立ちます。

  • 玄関ドア

    断熱性と防犯性を兼ね備えた玄関ドア。子扉を開ければ大きな荷物も楽に運べます。

  • 録画機能付テレビドアホン

    来客画像を8枚連続で録画・保存(最大50件、400枚)できる機能を内蔵。帰宅後、モニター画面で確認できます。

キッチン

多機能システムキッチン

多機能システムキッチン

基本機能を追求した快適なエサキホームオリジナルシステムキッチン。

  • IHクッキングヒーター

    本格調理が楽しめる左右3.0Kwの大火力。凹凸がなくお手入れ簡単。吹きこぼれも一拭きでいつも清潔。

  • 人大スキマレスシンク

    継ぎ目の隙間がないので汚れがたまりにくい。水切りにも調理スペースにもなる『スラくるネット』付き。

  • 浄水器兼用混合栓

    スタイリッシュな空間にも合うミニマルデザイン。プッシュボタンを押すだけで簡単に浄水/原水が切り替わり、浄水と原水の両方でシャワーもストレートも吐水可能。

  • 食器洗い乾燥機

    フライパンや鍋も入る大容量サイズ。奥までフルに引き出せて、真上からラクにセット可能。

  • スマートフードⅡ

    リモコン対応、フード照明にLEDを採用。フード底面をフラットにすることでお手入れも簡単。

  • 鏡面仕上げキッチンパネル

    目地の少ない大判パネルでお手入れ簡単。キズに強く、がんこな油汚れもサッとひと拭き。

  • カウンタ―側面コンセント

    ミキサーやハンドブレンダーなどの電源に便利な2口コンセント。カウンターでコーヒーメーカーや電気ポットなどの使用時にも活躍。

  • フロアユニット収納

    ソフトクロージング機能、ロック機能付き包丁差し、上置きトレーなど、たっぷり入って出し入れスマート。

洗面・バスルーム

システムバス

システムバス

少し大きめ1717(1坪)サイズ。バリアフリー仕様のシステムバス。保温材付きの魔法びん浴槽。お掃除ラクラクほっカラリ床。

収納付シャンプードレッサー(W900+300mm)

収納付シャンプードレッサー(W900+300mm)

お掃除ラクラク、鏡の後ろにもたっぷり収納できるシャンプードレッサー。
2段引き出しタイプのキャビネットはたっぷりの収納スペースがあるので、収納物がひと目で見渡せます。水栓・すべり台ボウル、タッチレスワイドLED・エコミラーなど工夫がいっぱい。ゆとりある洗面空間を実現。

  • 魔法びん浴槽

    4時間経ってもお湯の温度低下はわずか2.5度。家族みんなであったかいお風呂に入れます。

  • ゆるリラ浴槽

    腰、背中、お尻、足の4点を支えることで身体にかかる力を分散し、入浴する人をやさしく包み込み支えます。自然とリラックス姿勢に導く癒しの形状です。

  • コンフォートウエーブシャワー

    従来品より35パーセントの節水でも、水量感たっぷり。

  • ほっカラリ床

    表面の水を誘導し、翌朝にはカラリと乾き靴下のまま入っても大丈夫。親水パワーの効果で軽くこすれば汚れがスッキリ、お掃除もラクラク。

  • 浴室暖房乾燥機

    衣類乾燥、換気、暖房、涼風と1台4役の浴室乾燥機。

  • エコキュート

    空気の熱でお湯をつくるエコロジーな電気給湯器。夜間電力を利用するので光熱費の節約にもなります。

  • ウォシュレット一体型トイレ

    フチなし形状&トルネード洗浄でお掃除ラクラク。従来品に比べ洗浄水量を約7割カット。ウォシュレット機能付トイレ。

  • ホスクリーン(室内物干/主寝室設置)

    ポールがワンタッチで着脱可能なスポット型物干し。 非使用時は壁掛けフックに収納でお部屋スッキリ。雨や台風のシーズンや花粉の季節でも安心して洗濯物を干せる。急な雨の時もパッと室内に取り込むのに便利。
    *E棟/多目的ルーム設置

建材・床・窓

2.4mハイドア

2.4mハイドア

床から天井まである2.4mのハイドアで、空間に開放感をもたらします。

フローリング

フローリング

無垢の風合いと深みを表現した、自然を感じる床材です。

  • 高性能エアコン

    高い省エネ性と充実の機能を兼ね備えたハイスペックモデル。熱交換器加熱除菌でエアコン内部もお部屋の空気も清潔。AIでオーダーメイドの快適を実現。

  • アルミと樹脂のハイブリット構造で高断熱と結露軽減を実現。ガラス面は高遮熱仕様のアルゴンガス入りLow-E複層ガラスを採用。

収納

パントリー

パントリー

食料品やペットボトルの飲料はもちろん、普段使わない調理器具や分別用ごみ箱も置けるので、キッチン周りをすっきり綺麗に保てます。

ウォークインクローゼット

ウォークインクローゼット

洋服や小物がしっかり収納できる大型の収納空間を確保しました。居室をすっきり綺麗に保つことができます。

  • 玄関収納

    扉を閉めれば玄関はいつも綺麗。土間なのでベビーカーや砂のついたおもちゃもそのまましまえます。
    ※物件により異なります。

  • 姿見付大型シューズボックス

    靴収納量は50足以上。家族みんなの履物や備品をしっかり収納。
    ※物件により異なります。

  • 洗面室物入

    タオルや着替え、洗剤のストック品など何でも収納できる大きな物入。

  • 1階トイレ収納

    ペーパーホルダー脇の収納キャビネットに加え、備え付け収納を設置。トイレットペーパー(12個入)を袋ごと収納できる奥行を確保しています。

  • 所在地

    愛知県北名古屋市高田寺起返18-7他

  • 販売価格

    3,780万円 (税込) ~
    4,080万円 (税込)

  • 建物構造

    E・F棟:木造瓦葺2階建、G・H棟:木造瓦及びガルバリウム鋼板葺2階建

  • 土地面積

    136.73m2(41.36坪) ~
    178.89m2(54.11坪)

  • 建物面積

    135.23m2(40.90坪) ~
    135.57m2(41.00坪)

  • 販売戸数

    4 戸

  • 総戸数

    12 戸

  • 完成時期

    2025年5月

  • 用途地域

    第一種中高層住居専用地域(建ぺい率60%・容積率200%)

  • 設備

    公営上水道、合併浄化槽、中部電力(オール電化)

  • 私道負担

    A〜F・H〜Q棟237.45㎡各戸持分1/16ずつ(敷地面積に含まない)

  • 共有地

    E・F棟0.55㎡各戸持分1/2ずつ(敷地面積に含まない)、F・H棟0.56㎡各戸持分1/2ずつ(敷地面積に含まない)

  • その他制限事項

    航空法による規制有・日影制限有

  • 取引態様

    売主

  • その他

    ・諸経費が別途必要となります。詳細については係員までお問合せ下さい。
    ・掲載の間取り図・区画図は計画段階のものを基に描き起こしたもので、実際とは異なる場合がございます。
    ・所要時間は地図上の概測距離を80m=徒歩1分、250m=自転車1分、車は時速40㎞で計算したものです。
    ・駐車台数は、区画図または各間取り図に表示の自動車サイズを想定しております。車種によっては駐車台数が異なる場合があります。
    ・内観写真内の家具はモデル用又はCG加工によるものであり、実際の物件には付属していません。
    ・引渡し可能時期:即入居可
    ・次回更新予定日:情報提供日より14日以内、取引条件の有効期限:情報提供日より2か月以内

  • ※情報提供日 2025年11月26日

見学予約

ご希望の日時をお選びください

○:即時予約可能 ■:リクエスト予約(仮予約) 
TEL:お電話でお問合せください

お問い合わせ・資料請求

【名古屋北支店】

0120-87-3370

※こちらをタップするとお電話が可能です

受付時間 | 10:00~19:00

資料請求はこちら

お気に入り物件に追加

住宅見学会