PROPERTY DETAILS

E's garden 東海市中ノ池

お気に入り物件に追加

お気に入り物件に追加

E's garden 東海市中ノ池

棟を選択

A

B

C

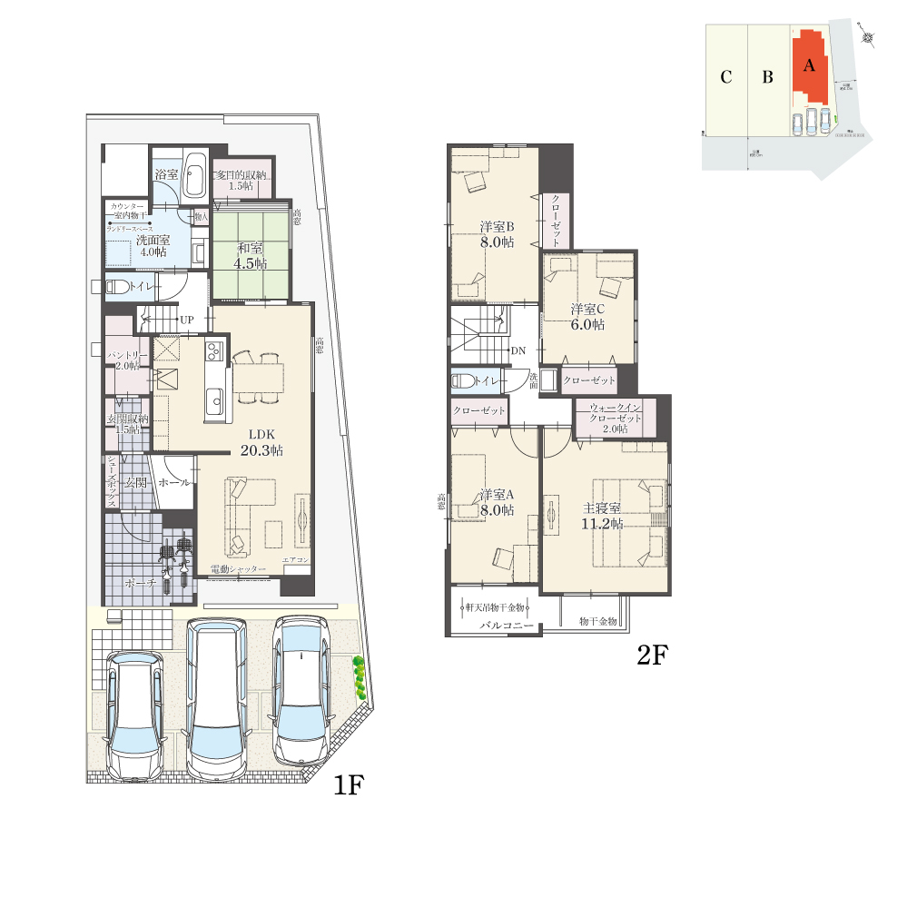
A 棟 4,880万円(税込)

  • 間取り:5LDK+ 多目的収納+ ウォークインクローゼット+ 玄関収納+ パントリー+ ランドリースペース
  • 駐車: 3台分
  • 土地面積: 154.84m2(46.83坪)
  • 建物面積: 146.30m2(44.25坪)
  • 備考:*建物面積にポーチ面積の一部(2.19㎡)およびバルコニー面積の一部(1.41㎡)および設備設置スペースの一部(2.18㎡)含む
  • A棟 外観 南区画で日当たり良好な立地!!3台並列駐車スペースを設けているので来客時の駐車にもしっかり対応できます。

  • A棟 玄関 家族の成長とともに数を増す靴、靴箱は大きく、収納豊富でブーツや長靴なども安心してしまうことができます。 

  • A棟 玄関収納 玄関の土間収納はベビーカーやアウトドアグッズなども置けます。

  • A棟 LDK のんびりとしたゆとりの広さが嬉しいLDK。どこにいても家族の様子がわかり、おしゃべりを楽しみながら、家族団らんの時間をお過ごしいただけます。

  • A棟 ダイニング お料理しているときも、ご家族との繋がりが感じられる間取り。ダイニングスペースで勉強をするお子様の様子を見守れます。

  • A棟 キッチン 火の消し忘れにも安心のIHクッキングヒーター。吹きこぼれなどの汚れもサッと拭けてお手入れ簡単。

  • A棟 パントリー パントリーは、キッチン用品やストック品等の収納に便利です 。

  • A棟 和室 LDKに隣接している和室。来客時や、またお子様の遊び・お昼寝スペースとしてもご活用いただけます。

  • A棟 トイレ コンパクトでも掃除道具が収納可能。トイレ空間をさらに充実活用できます。

  • A棟 洗面室 洗濯機を置いても十分な広さのある収納力のある洗面室。散らかりがちな水回りをすっきり片付けられます。洗面収納も設置されています。

  • A棟 ランドリースペース 洗面室にはカウンター付きのランドリースペースもあり、干す・畳む・しまうが出来ます。

  • A棟 浴室 1坪タイプより大きい、1717タイプのお風呂です。お子様と入ってもゆとりのある広さです。

  • A棟 2階洗面台 忙しい朝でもゆったりとご支度できます。

  • A棟 主寝室 主寝室は11.2帖と大きめの空間となっており、ベッド以外の小物を飾ったりできるスペースもあります。

  • A棟 ウォークインクローゼット 夫婦の衣類をすっきりと収納できる2.0帖ウォークインクローゼット付き。全居室に収納スペースを設けています。

  • A棟 洋室A 南から明るい光が差し込む居心地の良い空間。2階すべての居室に収納が付いています。

  • 建築物省エネ法に基づく建築物の省エネ性能ラベルとなります。

パノラマビュー

物件の特長

  • 最寄り駅まで徒歩10分以内
  • 名駅ラクラク通勤
  • 2階建
  • 駐車場3台以上
  • オール電化(IHコンロ・リビングエアコン付)
  • リビングアップスルー階段
  • ランドリースペース・ルーム付き
  • 玄関収納付き
  • パントリーのある家
  • リビングまたは多目的収納
  • 電動シャッター
  • 2階洗面
  • 今すぐ引っ越し可能

区画図

区画・間取り

詳細

※横にスクロールできます。

間取り 販売価格 駐車 土地面積 建物面積 販売状況
A 5LDK
多目的収納
ウォークインクローゼット
玄関収納
パントリー
ランドリースペース
4,880万円
(税込)
3台分
154.84m2
(46.83坪)
146.30m2
(44.25坪)
販売中
B 5LDK
ウォークインクローゼット
玄関収納
コートクローク
パントリー
ランドリースペース
4,680万円
(税込)
3台分
150.00m2
(45.37坪)
142.72m2
(43.17坪)
販売中
C 5LDK
ウォークインクローゼット
玄関収納
コートクローク
パントリー
4,630万円
(税込)
3台分
150.00m2
(45.37坪)
141.71m2
(42.86坪)
販売中

アクセス

※乗り換え時間含まず、曜日・時間帯により異なる場合があります。

周辺施設

交通

  • 名鉄河和線「加木屋中ノ池」駅

    名鉄河和線「加木屋中ノ池」駅

    約500m
    徒歩約7分
    自転車約2分

  • 名鉄常滑線「太田川」駅

    名鉄常滑線「太田川」駅

    約2,400m  自転車約10分

教育施設

  • memorytree社山保育園

    memorytree社山保育園

    約1,100m
    徒歩約14分
    自転車約5分

  • 雨尾幼稚園

    雨尾幼稚園

    約1,500m
    徒歩約19分
    自転車約6分

  • 横須賀小学校

    横須賀小学校

    約1,500m  徒歩約19分

  • 横須賀中学校

    横須賀中学校

    約550m  徒歩約7分

買い物

  • ヤマナカ 高横須賀店

    ヤマナカ 高横須賀店

    約1,100m
    徒歩約14分
    自転車約5分

  • バロー加木屋店

    バロー加木屋店

    約1,500m
    徒歩約19分
    自転車約6分

  • ウエルシア 東海加木屋店

    ウエルシア 東海加木屋店

    約940m
    徒歩約12分
    自転車約4分

  • フェルナ 加木屋店

    フェルナ 加木屋店

    約2,350m  自転車約10分

  • 平和堂 知多店

    平和堂 知多店

    約2,420m  自転車約10分

  • ソラト太田川

    ソラト太田川

    約2,330m  自転車約10分

  • ラスパ太田川

    ラスパ太田川

    約2,820m  自転車約12分

病院

  • 西知多総合病院

    西知多総合病院

    約650m
    徒歩約9分
    自転車約3分

  • かとう内科こどもクリニック

    かとう内科こどもクリニック

    約1,100m
    徒歩約14分
    自転車約5分

  • おひさまこどもクリニック

    おひさまこどもクリニック

    約1,240m
    徒歩約16分
    自転車約5分

公共施設

  • 汐見が丘公園

    汐見が丘公園

    約60m  徒歩約1分

  • 中ノ池公園

    中ノ池公園

    約300m
    徒歩約4分
    自転車約2分

その他

  • スターバックス コーヒー 東海加木屋店

    スターバックス コーヒー 東海加木屋店

    約1,100m
    徒歩約14分
    自転車約5分

玄関

外構工事

外構工事

植栽・生垣などを施した外構工事により、緑あふれる自然景観を楽しむ生活を演出。(当社施工実績)
【宅配ボックス】全棟標準設置です。
※物件により一部仕様が異なる場合がございます。

  • 宅配ボックス

    外出時も荷物の受け取りが可能な宅配ボックスを標準設置。毎日の暮らしにゆとりをもたらすプラスワン設備です。

  • ポケットkey

    専用アプリをインストールすれば、スマートフォンが専用キーに早変わり。スマートフォンを取り出さずにカギを施錠解錠したり、アプリ操作で施錠解錠できます。

  • 人感センサーLEDポーチ灯

    暗くなると自動点灯でお出迎え。深夜は人が近づいた時だけ点灯し防犯対策に役立ちます。
    ※物件により異なります。

  • 玄関ドア

    断熱性と防犯性を兼ね備えた玄関ドア。さらに安心さをプラスするロック機構「ドアガード」付き。また通風機構により生活シーンに合せた玄関の通風・換気が可能です。

  • 録画機能付テレビドアホン

    来訪者画像を自動で録画・保存(1枚録画:100件)できる録画機能を内蔵。帰宅後、モニター画面で確認できます。

キッチン

多機能システムキッチン

多機能システムキッチン

基本機能を追求した快適なエサキホームオリジナルシステムキッチン。
※一部仕様が異なる場合がございます。

  • IHクッキングヒーター

    本格調理が楽しめる左右3.0Kwの大火力。凹凸がなくお手入れ簡単。吹きこぼれも一拭きでいつも清潔。

  • 人大スキマレスシンク

    継ぎ目の隙間がないので汚れがたまりにくい。水切りにも調理スペースにもなる『スラくるネット』付き。

  • 浄水器兼用混合栓

    スタイリッシュな空間にも合うミニマルデザイン。プッシュボタンを押すだけで簡単に浄水/原水が切り替わり、浄水と原水の両方でシャワーもストレートも吐水可能。

  • 食器洗い乾燥機

    庫内が深く容量も大きい深型食洗機。たくさんの食器、鍋やフライパンなど大きな調理器具も一緒に洗えて便利。奥までフルに引き出せて、真上からラクにセット可能。

  • スマートフードⅡ

    リモコン対応、フード照明にLEDを採用。フード底面をフラットにすることでお手入れも簡単。

  • 鏡面仕上げキッチンパネル

    目地の少ない大判パネルでお手入れ簡単。キズに強く、がんこな油汚れもサッとひと拭き。

  • カウンタ―側面コンセント

    ミキサーやハンドブレンダーなどの電源に便利な2口コンセント。カウンターでコーヒーメーカーや電気ポットなどの使用時にも活躍。

  • フロアユニット収納

    ソフトクロージング機能、ロック機能付き包丁差し、上置きトレーなど、たっぷり入って出し入れスマート。

洗面・バスルーム

システムバス

システムバス

少し大きめ1717(1坪)サイズ。バリアフリー仕様のシステムバス。保温材付きの魔法びん浴槽。お掃除ラクラクほっカラリ床。

収納付シャンプードレッサー(W900+300mm)

収納付シャンプードレッサー(W900+300mm)

お掃除ラクラク、鏡の後ろにもたっぷり収納できるシャンプードレッサー。
2段引き出しタイプのキャビネットはたっぷりの収納スペースがあるので、収納物がひと目で見渡せます。水栓・すべり台ボウル、タッチレスワイドLED・エコミラーなど工夫がいっぱい。ゆとりある洗面空間を実現。

  • 2階 収納付洗面化粧台

    2階にセカンド洗面を設けることで、朝の洗面の混雑を緩和するとともに2階バルコニー等の清掃にも利用できて便利です。

  • 魔法びん浴槽

    4時間経ってもお湯の温度低下はわずか2.5度。家族みんなであったかいお風呂に入れます。

  • コンフォートウエーブシャワー

    従来品より35パーセントの節水でも、水量感たっぷり。

  • ほっカラリ床

    表面の水を誘導し、翌朝にはカラリと乾き靴下のまま入っても大丈夫。親水パワーの効果で軽くこすれば汚れがスッキリ、お掃除もラクラク。

  • 浴室暖房乾燥機

    衣類乾燥、換気、暖房、涼風と1台4役の浴室乾燥機。

  • エコキュート

    空気の熱でお湯をつくるエコロジーな電気給湯器。夜間電力を利用するので光熱費の節約にもなります。

  • ウォシュレット一体型トイレ

    フチなし形状&トルネード洗浄でお掃除ラクラク。従来品に比べ洗浄水量を約7割カット。ウォシュレット機能付トイレ

  • ホスクリーン(室内物干/A・B棟:洗面室設置)

    ポールがワンタッチで着脱可能なスポット型物干し。 非使用時は壁掛けフックに収納でお部屋スッキリ。雨や台風のシーズンや花粉の季節でも安心して洗濯物を干せる。急な雨の時もパッと室内に取り込むのに便利。
    *C棟:主寝室設置

建材・窓・空調設備

2.4mハイドア

2.4mハイドア

床から天井まである2.4mのハイドアで、空間に開放感をもたらします。

フローリング

フローリング

木肌の色や質感を生かした雰囲気をそのままに、木の温かみあふれるナチュラル空間コーディネートを演出する床材です。

  • 電動シャッター (1階/掃き出し窓側)

    毎日の上げ下げをリモコン一つで快適に。シャッターの開閉音も気にならないし、開閉時の雨風や虫などの侵入も電動シャッターなら安心。

  • アルミと樹脂のハイブリット構造で高断熱と結露軽減を実現。ガラス面は高遮熱仕様のアルゴンガス入りLow-E複層ガラスを採用。

  • 高性能エアコン

    高い省エネ性と充実の機能を兼ね備えたハイスペックモデル。熱交換器加熱除菌でエアコン内部もお部屋の空気も清潔。AIでオーダーメイドの快適を実現。

収納

パントリー

パントリー

食料品やペットボトルの飲料はもちろん、普段使わない調理器具や分別用ごみ箱も置けるので、キッチン周りをすっきり綺麗に保てます。

ウォークインクローゼット

ウォークインクローゼット

洋服や小物がしっかり収納できる大型の収納空間を確保しました。居室をすっきり保ち、より広さを感じていただけます。

  • 玄関収納

    扉を閉めれば玄関はいつも綺麗。土間なのでベビーカーや砂のついたおもちゃもそのまましまえます。
    ※物件により異なります。

  • 姿見付大型シューズボックス

    靴収納量は50足以上。家族みんなの履物や備品をしっかり収納。
    ※物件により異なります。

  • 洗面室物入

    タオルや着替え、洗剤のストック品など何でも収納できる大きな物入。

  • 1階トイレ収納

    ペーパーホルダー脇の収納キャビネットに加え、備え付け収納を設置。トイレットペーパー(12個入)を袋ごと収納できる奥行を確保しています。
    ※物件により異なります。

  • 所在地

    愛知県東海市中ノ池一丁目1-3他

  • 販売価格

    4,630万円 (税込) ~
    4,880万円 (税込)

  • 建物構造

    A・C棟:木造瓦及びガルバリウム鋼板葺2階建、B棟:木造瓦葺2階建

  • 土地面積

    150.00m2(45.37坪) ~
    154.84m2(46.83坪)

  • 建物面積

    141.71m2(42.86坪) ~
    146.30m2(44.25坪)

  • 販売戸数

    3 戸

  • 総戸数

    3 戸

  • 完成時期

    2026年1月

  • 用途地域

    第一種中高層住居専用地域(建ぺい率60%・容積率200%)

  • 設備

    公営上下水道、中部電力(オール電化)

  • 建築確認
    番号

    確認サービス第KS125-0420-55711号(2025.8.28)他

  • 取引態様

    売主

  • その他

    ・諸経費が別途必要となります。詳細については係員までお問合せ下さい。
    ・掲載の間取り図・区画図は計画段階のものを基に描き起こしたもので、実際とは異なる場合がございます。
    ・所要時間は地図上の概測距離を80m=徒歩1分、250m=自転車1分、車は時速40㎞で計算したものです。
    ・駐車台数は、区画図または各間取り図に表示の自動車サイズを想定しております。車種によっては駐車台数が異なる場合があります。
    ・内観写真内の家具はモデル用又はCG加工によるものであり、実際の物件には付属していません。
    ・引渡し可能時期:即入居可
    ・次回更新予定日:情報提供日より14日以内、取引条件の有効期限:情報提供日より2か月以内

  • ※情報提供日 2026年04月27日

見学予約

ご希望の日時をお選びください

○:即時予約可能 ■:リクエスト予約(仮予約)
×:予約不可日 TEL:お電話でお問合せください

お問い合わせ・資料請求

【東海支店】

0120-87-3380

※こちらをタップするとお電話が可能です

受付時間 | 10:00~19:00

資料請求はこちら

お気に入り物件に追加

ゆとりの新生活