PROPERTY DETAILS

E's garden 豊川市本野町Ⅱ

お気に入り物件に追加

お気に入り物件に追加

E's garden 豊川市本野町Ⅱ

棟を選択

B

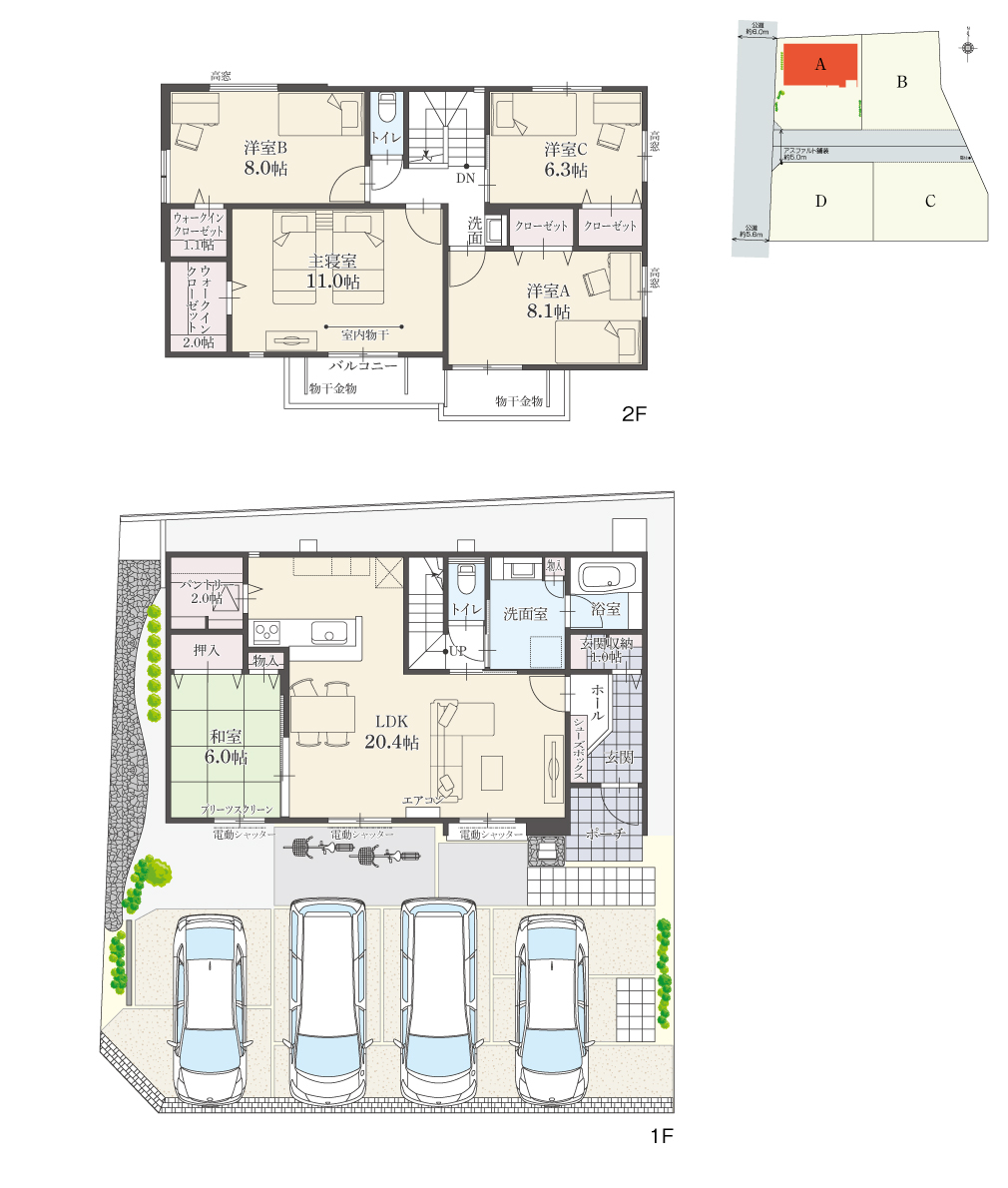
B 棟 4,230万円(税込)

  • 間取り:5LDK+ ウォークインクローゼット+ 玄関収納+ リビング収納+ パントリー+ ランドリースペース
  • 駐車: 4台分
  • 土地面積: 263.44m2(79.69坪)
  • 建物面積: 142.18m2(43.00坪)
  • 備考:*有効土地面積/190.23㎡ (57.54坪) *建物面積に設備設置スペースの一部(1.66㎡)含む
  • 【B棟 LDK】 室内にいても、たっぷりの陽光と爽やかな風を感じていただける、開放感あふれるリビングです。エアコンを設置しており、いつでも快適な空間でお過ごしいただけます。

  • 【B棟 和室】 LDKと隣接した和室。お子様の遊び部屋・お昼寝スペースとして使うのもオススメです!客間としてもご活用いただけます。

  • 【B棟 キッチン】 お手入れ簡単、収納力、使いやすさにこだわったシステムキッチンです。キッチンでの作業が楽しくなる嬉しい設備を標準装備しています。

  • 【B棟 洗面室】 毎日の洗濯が楽になる便利なカウンター付きランドリースペース。洗う・干す・乾かす・畳むが1つの空間で行え、家事動線がラクラクです♪

  • 【B棟 浴室】 1坪タイプのバスルーム。ゆったり足が伸ばせるので、毎日の疲れを癒すバスタイムを実現。ご家族一緒に入れます。浴室暖房乾燥機付きで浴室内干しも可能!

  • 【B棟 玄関収納】 ベビーカーや泥のついたおもちゃをしまうのに便利な玄関収納付き!キャンプ用品やゴルフ道具などもしまえ多趣味なご家族にもぴったり。

  • 【B棟 主寝室】 大きな窓からたっぷりの陽光が降り注ぐ明るい室内です。気持ちの良い朝日を受けて、目覚めの良い健康的な朝を迎えられそうです。

  • 【B棟 トイレ】 お掃除道具やトイレ用品などもしっかり入る収納を装備しています。手洗い一体型のトイレで、ご利用後すぐに手が洗えて衛生的です。

  • 【B棟 パントリー】 食品や食器などを収納できるパントリー。普段はあまり使わない調理器具や入りきらない調味料類をしまうなど、使い勝手は多様。備蓄庫として機能性だけでなく見た目にも優れた収納です!

  • 【B棟 バルコニー】 日当たりの良いバルコニーは、一度にたくさんのお洗濯物が干せるのが魅力!バルコニーは洗濯物を干すだけの場所じゃなく、ご家族のゆとりある時間を演出するプライベート空間。

  • 【B棟 外観】 4台並列駐車可能です。 お友達やご両親を呼んでも安心の広さです。

  • 建築物省エネ法に基づく建築物の省エネ性能ラベルとなります。

物件の特長

  • 小学校まで徒歩10分以内
  • 2階建
  • 駐車場3台以上
  • オール電化(IHコンロ・リビングエアコン付)
  • リビングアップスルー階段
  • ランドリースペース・ルーム付き
  • 玄関収納付き
  • パントリーのある家
  • リビングまたは多目的収納
  • 電動シャッター
  • 2階洗面

区画図

区画・間取り

詳細

※横にスクロールできます。

間取り 販売価格 駐車 土地面積 建物面積 販売状況
B 5LDK
ウォークインクローゼット
玄関収納
リビング収納
パントリー
ランドリースペース
4,230万円
(税込)
4台分
263.44m2
(79.69坪)
142.18m2
(43.00坪)
販売中

アクセス

※乗り換え時間含まず、曜日・時間帯により異なる場合があります。

周辺施設

交通

  • JR飯田線「豊川」駅

    JR飯田線「豊川」駅

    約2,440m  自転車約10分

  • 名鉄豊川線「豊川稲荷」駅

    名鉄豊川線「豊川稲荷」駅

    約2,460m  自転車約10分

  • 名鉄豊川線「諏訪町」駅

    名鉄豊川線「諏訪町」駅

    約2,600m  自転車約11分

  • 豊川市コミュニティバス「三蔵子」停

    豊川市コミュニティバス「三蔵子」停

    約140m  徒歩約2分

教育施設

  • 豊川保育園

    豊川保育園

    約510m
    徒歩約7分
    自転車約3分

  • 豊川東幼稚園

    豊川東幼稚園

    約1,650m
    徒歩約21分
    自転車約7分

  • 三蔵子小学校

    三蔵子小学校

    約130m  徒歩約2分

  • 金屋中学校

    金屋中学校

    約1,930m  徒歩約25分

買い物

  • クックマート 本野町店

    クックマート 本野町店

    約300m
    徒歩約4分
    自転車約2分

  • ココカラファイン 桜木店

    ココカラファイン 桜木店

    約590m
    徒歩約8分
    自転車約3分

  • ゲンキー 桜木店

    ゲンキー 桜木店

    約670m
    徒歩約9分
    自転車約3分

  • アミカ 豊川店

    アミカ 豊川店

    約1,130m
    徒歩約15分
    自転車約5分

  • イオン 豊川開運通店

    イオン 豊川開運通店

    約1,450m
    徒歩約19分
    自転車約6分

  • ミニストップ 本野町店

    ミニストップ 本野町店

    約240m
    徒歩約3分
    自転車約1分

  • スギ薬局 豊川北店

    スギ薬局 豊川北店

    約20m
    徒歩約1分
    自転車約1分

病院

  • ほんのクリニック

    ほんのクリニック

    約350m
    徒歩約5分
    自転車約2分

  • 井上医院

    井上医院

    約460m
    徒歩約6分
    自転車約2分

  • 福田内科

    福田内科

    約670m
    徒歩約9分
    自転車約3分

公共施設

  • 本野児童遊園

    本野児童遊園

    約400m
    徒歩約5分
    自転車約2分

  • 桜ヶ丘公園

    桜ヶ丘公園

    約1,160m
    徒歩約15分
    自転車約5分

  • 豊川公園

    豊川公園

    約1,600m
    徒歩約20分
    自転車約7分

  • 豊川市役所

    豊川市役所

    約2,120m  自転車約9分

  • さんぞうご児童館

    さんぞうご児童館

    約70m  徒歩約1分

その他

  • 豊川三蔵子郵便局

    豊川三蔵子郵便局

    約230m
    徒歩約3分
    自転車約1分

玄関

外構工事

外構工事

植栽・生垣などを施した外構工事により、緑あふれる自然景観を楽しむ生活を演出。(当社施工実績)
【宅配ボックス】全棟標準設置です。
※物件により一部仕様が異なる場合がございます。

  • 宅配ボックス

    外出時も荷物の受け取りが可能な宅配ボックスを標準設置。毎日の暮らしにゆとりをもたらすプラスワン設備です。

  • スマートロックシステム

    専用アプリをインストールすれば、スマートフォンが専用キーに早変わり。スマートフォンを取り出さずにカギを施錠解錠したり、アプリ操作で施錠解錠できます。

  • 人感センサーLEDポーチ灯

    暗くなると自動点灯でお出迎え。深夜は人が近づいた時だけ点灯し防犯対策に役立ちます。
    ※物件により異なります。

  • 玄関ドア

    断熱性と防犯性を兼ね備えた玄関ドア。さらにプラスの安心は「こじ破り対策」と「ガラス破り対策」。破られにくい2ロックでピッキング対策も万全。

  • 録画機能付テレビドアホン

    来訪者画像を自動で録画・保存(1枚録画:100件)できる録画機能を内蔵。帰宅後、モニター画面で確認できます。

キッチン

多機能システムキッチン

多機能システムキッチン

キャビネットは全て引出しタイプのスライド収納。収納量と使い勝手の良さが魅力なエサキホームオリジナルシステムキッチン。

  • IHクッキングヒーター

    左右IH最大3.0kWの高火力でスピーディに調理ができます。凹凸がなくお手入れ簡単、吹きこぼれも一拭きでいつも清潔。グリルお手入れ機能も付いています。

  • アクリル人造大理石シンク

    キズや衝撃にも強く、美しさが長持ちする素材。毎日のお手入れは水拭きでサッと拭くだけで楽々。油汚れもツルンと落とせます。シンク廻りは段差・継目もなくお掃除が簡単、美しく保ちます。

  • 食器洗い乾燥機

    食器洗い乾燥機専用洗剤に含まれる酵素が活動しやすい温度にコントロールして洗浄。油汚れを溶かして浮かし、汚れを落としやすくします。

  • 浄水器兼用混合栓

    スタイリッシュな空間にも合うミニマルデザイン。プッシュボタンを押すだけで簡単に浄水/原水が切り替わり、浄水と原水の両方でシャワーもストレートも吐水可能。

  • ホーロークリーンキッチンパネル

    ペタッと簡単にマグネットの取り付け・取り外しが可能、汚れが染み込まないホーロー素材パネル。収納に欲しい場所にマグネットで収納を増やせ、普段の調理が効率的に。

  • レンジフード

    内部への汚れをシャットアウト、油汚れも水拭きでキレイに手入れがとても簡単。ホーローオイル受けやホーローグリスフィルターは食洗機でも洗えます。LED照明、常時換気扇モード機能付き。

  • カウンタ―側面コンセント

    ミキサーやハンドブレンダーなどの電源に便利な2口コンセント。カウンターでコーヒーメーカーや電気ポットなどの使用時にも活躍。

  • フロアキャビネット

    調理動線に沿った収納が可能で、スムーズに出し入れしやすくキッチンワークをより快適にします。大容量の収納も実現。引出しの底板もホーロー素材なので醤油染みなども水拭きで汚れが落ちます。

洗面・バスルーム

システムバス

システムバス

少し大きめ1717(1坪)サイズ。バリアフリー仕様のシステムバス。保温材付きの魔法びん浴槽。お掃除ラクラクほっカラリ床。

収納付シャンプードレッサー(W900+300mm)

収納付シャンプードレッサー(W900+300mm)

お掃除ラクラク、鏡の後ろにもたっぷり収納できるシャンプードレッサー。
2段引き出しタイプのキャビネットはたっぷりの収納スペースがあるので、収納物がひと目で見渡せます。水栓・すべり台ボウル、タッチレスワイドLED・エコミラーなど工夫がいっぱい。ゆとりある洗面空間を実現。

  • 2階 収納付洗面化粧台

    2階にセカンド洗面を設けることで、朝の洗面の混雑を緩和するとともに2階バルコニー等の清掃にも利用できて便利です。

  • 魔法びん浴槽

    4時間経ってもお湯の温度低下はわずか2.5度。家族みんなであったかいお風呂に入れます。

  • コンフォートウエーブシャワー

    従来品より35パーセントの節水でも、水量感たっぷり。

  • ほっカラリ床

    表面の水を誘導し、翌朝にはカラリと乾き靴下のまま入っても大丈夫。親水パワーの効果で軽くこすれば汚れがスッキリ、お掃除もラクラク。

  • 浴室暖房乾燥機

    衣類乾燥、換気、暖房、涼風と1台4役の浴室乾燥機。

  • エコキュート

    空気の熱でお湯をつくるエコロジーな電気給湯器。夜間電力を利用するので光熱費の節約にもなります。

  • ウォシュレット一体型トイレ

    フチなし形状&トルネード洗浄でお掃除ラクラク。従来品に比べ洗浄水量を約7割カット。ウォシュレット機能付トイレ

  • ホスクリーン(室内物干)

    ポールがワンタッチで着脱可能なスポット型物干し。 非使用時は壁掛けフックに収納でお部屋スッキリ。雨や台風のシーズンや花粉の季節でも安心して洗濯物を干せる。急な雨の時もパッと室内に取り込むのに便利。

建材・窓・空調設備

2.4mハイドア

2.4mハイドア

床から天井まである2.4mのハイドアで、空間に開放感をもたらします。

フローリング

フローリング

無垢の風合いと深みを表現した、自然を感じる床材です。

  • 電動シャッター (1階/リビング掃き出し窓側)

    毎日の上げ下げをリモコン一つで快適に。シャッターの開閉音も気にならないし、開閉時の雨風や虫などの侵入も電動シャッターなら安心。

  • アルミと樹脂のハイブリット構造で高断熱と結露軽減を実現。ガラス面は高遮熱仕様のアルゴンガス入りLow-E複層ガラスを採用。

  • 高性能エアコン

    高い省エネ性と充実の機能を兼ね備えたハイスペックモデル。熱交換器加熱除菌でエアコン内部もお部屋の空気も清潔。AIでオーダーメイドの快適を実現。

収納

パントリー

パントリー

食料品やペットボトルの飲料はもちろん、普段使わない調理器具や分別用ごみ箱も置けるので、キッチン周りをすっきり綺麗に保てます。

ウォークインクローゼット

ウォークインクローゼット

洋服や小物がしっかり収納できる大型の収納空間を確保しました。居室をすっきり保ち、より広さを感じていただけます。

  • 玄関収納

    扉を閉めれば玄関はいつも綺麗。土間なのでベビーカーや砂のついたおもちゃもそのまましまえます。
    ※物件により異なります。

  • 姿見付大型シューズボックス

    靴収納量は50足以上。家族みんなの履物や備品をしっかり収納。
    ※物件により異なります。

  • 洗面室物入

    タオルや着替え、洗剤のストック品など何でも収納できる大きな物入。

  • 1階トイレ収納

    ペーパーホルダー脇の収納キャビネットに加え、備え付け収納を設置。トイレットペーパー(12個入)を袋ごと収納できる奥行を確保しています。
    ※物件により異なります。

  • 所在地

    愛知県豊川市本野町東浦9-5他

  • 販売価格

    4,230万円 (税込)

  • 建物構造

    木造瓦葺2階建

  • 土地面積

    263.44m2(79.69坪)

  • 建物面積

    142.18m2(43.00坪)

  • 販売戸数

    1 戸

  • 総戸数

    4 戸

  • 完成時期

    2026年2月予定

  • 用途地域

    第一種中高層住居専用地域(建ぺい率60%・容積率200%)・第二種中高層住居専用地域(建ぺい率60%・容積率200%)

  • 設備

    公営上下水道、中部電力(オール電化)

  • 建築確認
    番号

    確認サービス第KS125-0420-54344号(2025.8.7)

  • 私道負担

    B棟73.21㎡(土地面積に含む)

  • 通行地役権

    A棟の土地面積のうち1.03㎡はB・C棟の通行地役権、B棟の土地面積のうち73.21㎡はA・C棟の通行地役権、C棟の土地面積のうち77.19㎡はA・B棟の通行地役権が各々設定されます。

  • その他制限事項

    宅地造成工事規制区域、日影制限有

  • 取引態様

    売主

  • その他

    ・諸経費が別途必要となります。詳細については係員までお問合せ下さい。
    ・掲載の間取り図・区画図は計画段階のものを基に描き起こしたもので、実際とは異なる場合がございます。
    ・所要時間は地図上の概測距離を80m=徒歩1分、250m=自転車1分、車は時速40㎞で計算したものです。
    ・駐車台数は、区画図または各間取り図に表示の自動車サイズを想定しております。車種によっては駐車台数が異なる場合があります。
    ・内観写真内の家具はモデル用又はCG加工によるものであり、実際の物件には付属していません。
    ・引渡し可能時期は、完成時期以降となります。
    ・次回更新予定日:情報提供日より14日以内、取引条件の有効期限:情報提供日より2か月以内

  • ※情報提供日 2026年01月25日

見学予約

ご希望の日時をお選びください

○:即時予約可能 ■:リクエスト予約(仮予約) 
TEL:お電話でお問合せください

お問い合わせ・資料請求

【豊橋支店】

0120-87-3305

※こちらをタップするとお電話が可能です

受付時間 | 10:00~19:00

資料請求はこちら

お気に入り物件に追加

ゆとりの新生活