PROPERTY DETAILS

E's garden 豊橋市東小鷹野三丁目

お気に入り物件に追加

予約交付決定済みの物件となります。
また、対象となる世帯等の条件がございます。
詳しくは担当者までお問い合わせください。
エリアの魅力をご紹介

お気に入り物件に追加

E's garden 豊橋市東小鷹野三丁目

棟を選択

A

C

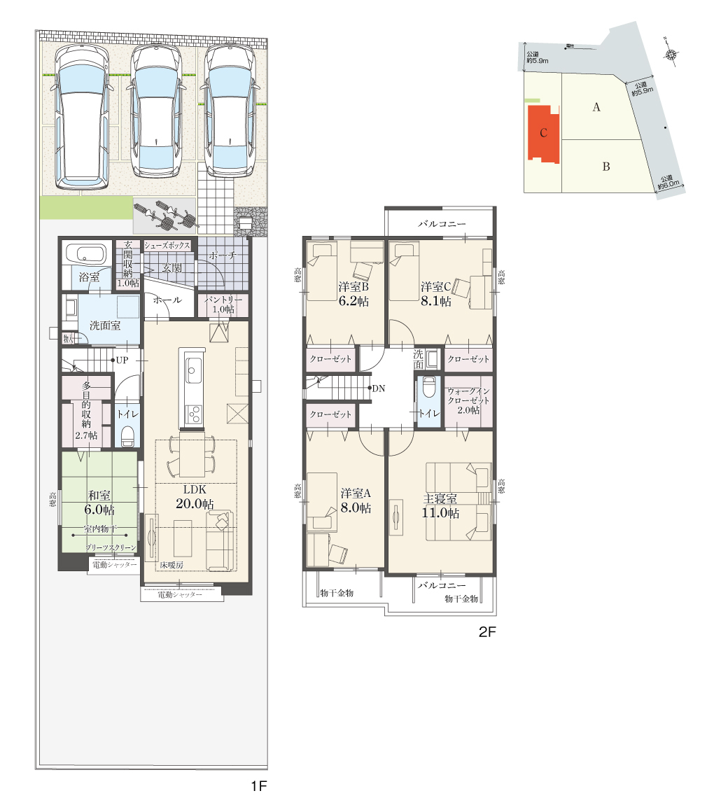
A 棟 4,295万円(税込)

  • 間取り:5LDK+ 多目的収納+ ウォークインクローゼット+ 玄関収納+ パントリー+ ランドリースペース
  • 駐車: 3台分
  • 土地面積: 193.01m2(58.38坪)
  • 建物面積: 140.52m2(42.50坪)
  • 【A棟 1階トイレ】 お掃除道具やトイレ用品などもしっかり入る収納を装備しています。手洗い一体型のトイレで、ご利用後すぐに手が洗えて衛生的です。

  • 【A棟 キッチン】 お料理や他の家事をしながら大切なご家族との会話を楽しめます。ご家族とのコミュニケーションが生まれる対面式のシステムキッチンです。

  • 【A棟 パントリー】 食品や食器などを収納できるパントリー。普段はあまり使わない調理器具や入りきらない調味料類をしまうなど、使い勝手は多様。備蓄庫として機能性だけではなく見た目にも優れた収納です!

  • 【A棟 玄関収納】 ベビーカーや泥のついたおもちゃをしまうのに便利な玄関収納付き!キャンプ用品やサーフィン道具などもしまえ多趣味なご家族にもぴったり。

  • 【A棟 洗面室】 毎日の洗濯が楽になる便利なカウンター付きランドリースペース。洗う・干す・乾かす・畳むが1つの空間で行え、家事動線がラクラクです♪

  • 【A棟 浴室】 お子様と一緒に入浴するのに十分な広さ♪湯船につかりながらゆっくりご家族との会話を楽しむなど、リラックスしたバスタイムを過ごせそうです。

  • 【A棟 和室】 LDKと隣接した和室。お子様の遊び部屋・お昼寝スペースとして使うのもオススメです!客間としてもご活用いただけます。

  • 【A棟 LDK】 大切なご家族が集まるからこそLDKはこだわりたい!休日はおひさまの光をたっぷりと取りこめるリビングでゆったりと過ごしませんか?

  • 【A棟 主寝室】 2面採光がとれる主寝室は、南側に窓を設けているため、一日中明るく、気分も明るくなりそうです。南側バルコニーに面しており、布団を干す際などもスムーズに行えます。

  • A棟 外観写真

  • 建築物省エネ法に基づく建築物の省エネ性能ラベルとなります。

パノラマビュー

物件の特長

  • 最寄り駅まで徒歩10分以内
  • 2階建
  • 駐車場3台以上
  • ガス仕様(ガスコンロ・床暖房)
  • リビングアップスルー階段
  • ランドリースペース・ルーム付き
  • 玄関収納付き
  • パントリーのある家
  • リビングまたは多目的収納
  • 電動シャッター
  • 2階洗面
  • 今すぐ引っ越し可能

区画図

区画・間取り

詳細

※横にスクロールできます。

間取り 販売価格 駐車 土地面積 建物面積 販売状況
A 5LDK
多目的収納
ウォークインクローゼット
玄関収納
パントリー
ランドリースペース
4,295万円
(税込)
3台分
193.01m2
(58.38坪)
140.52m2
(42.50坪)
販売中
C 5LDK
多目的収納
ウォークインクローゼット
玄関収納
パントリー
4,095万円
(税込)
3台分
192.99m2
(58.37坪)
140.39m2
(42.46坪)
販売中

アクセス

※乗り換え時間含まず、曜日・時間帯により異なる場合があります。

周辺施設

交通

  • 豊橋鉄道市内線「赤岩口」駅

    豊橋鉄道市内線「赤岩口」駅

    約800m
    徒歩約10分
    自転車約4分

  • 柿の里バス「浄水場前」停

    柿の里バス「浄水場前」停

    約220m  徒歩約3分

教育施設

  • 豊橋才能教育こども園

    豊橋才能教育こども園

    約860m
    徒歩約11分
    自転車約4分

  • 鷹丘小学校

    鷹丘小学校

    約880m  徒歩約11分

  • 東陵中学校

    東陵中学校

    約1,020m  徒歩約13分

買い物

  • ヤマナカ 赤岩フランテ館

    ヤマナカ 赤岩フランテ館

    約890m
    徒歩約12分
    自転車約4分

  • ショッピングプラザたか丘

    ショッピングプラザたか丘

    約960m
    徒歩約12分
    自転車約4分

  • ゲンキー 小鷹野店

    ゲンキー 小鷹野店

    約1,100m
    徒歩約14分
    自転車約5分

  • ウエルシア 豊橋平川本町店

    ウエルシア 豊橋平川本町店

    約1,110m
    徒歩約14分
    自転車約5分

病院

  • おだかの医院

    おだかの医院

    約180m
    徒歩約3分
    自転車約1分

  • 野田内科クリニック

    野田内科クリニック

    約190m
    徒歩約3分
    自転車約1分

公共施設

  • 中沢公園

    中沢公園

    約160m
    徒歩約2分
    自転車約1分

  • 小鷹野公園

    小鷹野公園

    約560m
    徒歩約7分
    自転車約3分

  • 牛川遊歩公園

    牛川遊歩公園

    約1,300m
    徒歩約17分
    自転車約6分

  • 豊橋市東部窓口センター

    豊橋市東部窓口センター

    約1,600m
    徒歩約20分
    自転車約7分

その他

  • 豊橋小鷹野郵便局

    豊橋小鷹野郵便局

    約730m
    徒歩約10分
    自転車約3分

玄関

外構工事

外構工事

植栽・生垣などを施した外構工事により、緑あふれる自然景観を楽しむ生活を演出。(当社施工実績)
【宅配ボックス】全棟標準設置です。
※物件により一部仕様が異なる場合がございます。

  • 宅配ボックス

    外出時も荷物の受け取りが可能な宅配ボックスを標準設置。毎日の暮らしにゆとりをもたらすプラスワン設備です。

  • ポケットkey

    専用アプリをインストールすれば、スマートフォンが専用キーに早変わり。スマートフォンを取り出さずにカギを施錠解錠したり、アプリ操作で施錠解錠できます。

  • 人感センサーLEDポーチ灯

    暗くなると自動点灯でお出迎え。深夜は人が近づいた時だけ点灯し防犯対策に役立ちます。

  • 玄関ドア

    断熱性と防犯性を兼ね備えた玄関ドア。さらに安心さをプラスするロック機構「ドアガード」付き。また通風機構により生活シーンに合せた玄関の通風・換気が可能です。

  • 録画機能付テレビドアホン

    来訪者画像を自動で録画・保存(1枚録画:100件)できる録画機能を内蔵。帰宅後、モニター画面で確認できます。

キッチン

多機能システムキッチン

多機能システムキッチン

キャビネットは全て引出しタイプのスライド収納。収納量と使い勝手の良さが魅力なエサキホームオリジナルシステムキッチン。

  • ガラストップコンロ

    軽い鍋をのせても安心な低荷重センサーが全口に搭載。お手入れ簡単なガラストップ、水無し両面焼きグリル付き。

  • アクリル人造大理石シンク

    キズや衝撃にも強く、美しさが長持ちする素材。毎日のお手入れは水拭きでサッと拭くだけで楽々。油汚れもツルンと落とせます。シンク廻りは段差・継目もなくお掃除が簡単、美しく保ちます。

  • 食器洗い乾燥機

    食器洗い乾燥機専用洗剤に含まれる酵素が活動しやすい温度にコントロールして洗浄。油汚れを溶かして浮かし、汚れを落としやすくします。

  • 浄水器兼用混合栓

    スタイリッシュな空間にも合うミニマルデザイン。プッシュボタンを押すだけで簡単に浄水/原水が切り替わり、浄水と原水の両方でシャワーもストレートも吐水可能。

  • ホーロークリーンキッチンパネル

    ペタッと簡単にマグネットの取り付け・取り外しが可能、汚れが染み込まないホーロー素材パネル。収納に欲しい場所にマグネットで収納を増やせ、普段の調理が効率的に。

  • レンジフード

    内部への汚れをシャットアウト、油汚れも水拭きでキレイに手入れがとても簡単。ホーローオイル受けやホーローグリスフィルターは食洗機でも洗えます。LED照明、常時換気扇モード機能付き。

  • カウンタ―側面コンセント

    ミキサーやハンドブレンダーなどの電源に便利な2口コンセント。カウンターでコーヒーメーカーや電気ポットなどの使用時にも活躍。

  • フロアキャビネット

    調理動線に沿った収納が可能で、スムーズに出し入れしやすくキッチンワークをより快適にします。大容量の収納も実現。引出しの底板もホーロー素材なので醤油染みなども水拭きで汚れが落ちます。

洗面・バスルーム

システムバス

システムバス

少し大きめ1717(1坪)サイズ。バリアフリー仕様のシステムバス。保温材付きの魔法びん浴槽。お掃除ラクラクほっカラリ床。

収納付シャンプードレッサー(W900+300mm)

収納付シャンプードレッサー(W900+300mm)

お掃除ラクラク、鏡の後ろにもたっぷり収納できるシャンプードレッサー。
2段引き出しタイプのキャビネットはたっぷりの収納スペースがあるので、収納物がひと目で見渡せます。水栓・すべり台ボウル、タッチレスワイドLED・エコミラーなど工夫がいっぱい。ゆとりある洗面空間を実現。

  • 2階 収納付洗面化粧台

    2階にセカンド洗面を設けることで、朝の洗面の混雑を緩和するとともに2階バルコニー等の清掃にも利用できて便利です。

  • 魔法びん浴槽

    4時間経ってもお湯の温度低下はわずか2.5度。家族みんなであったかいお風呂に入れます。

  • コンフォートウエーブシャワー

    従来品より35パーセントの節水でも、水量感たっぷり。

  • ほっカラリ床

    表面の水を誘導し、翌朝にはカラリと乾き靴下のまま入っても大丈夫。親水パワーの効果で軽くこすれば汚れがスッキリ、お掃除もラクラク。

  • 浴室暖房乾燥機

    衣類乾燥、換気、暖房、涼風と1台4役のガス式浴室乾燥機。

  • エコワンX5

    電気とガスを上手に使い分けるハイブリッド給湯器。学習制御機能搭載のリモコンで、お湯の使用状況を学習し家族構成やライフスタイルに合わせた給湯を行います。

  • ウォシュレット一体型トイレ

    フチなし形状&トルネード洗浄でお掃除ラクラク。従来品に比べ洗浄水量を約7割カット。ウォシュレット機能付トイレ

  • ホスクリーン(室内物干)

    ポールがワンタッチで着脱可能なスポット型物干し。非使用時は壁掛けフックに収納でお部屋スッキリ。雨や台風のシーズンや花粉の季節でも安心して洗濯物を干せる。急な雨の時もパッと室内に取り込むのに便利。

建材・窓・空調設備

2.4mハイドア

2.4mハイドア

床から天井まである2.4mのハイドアで、空間に開放感をもたらします。

フローリング

フローリング

無垢の風合いと深みを表現した、自然を感じる床材です。

  • 電動シャッター (1F掃き出し窓側)

    毎日の上げ下げをリモコン一つで快適に。シャッターの開閉音も気にならないし、開閉時の雨風や虫などの侵入も電動シャッターなら安心。

  • アルミと樹脂のハイブリット構造で高断熱と結露軽減を実現。ガラス面は高遮熱仕様のアルゴンガス入りLow-E複層ガラスを採用。

  • ガス温水式床暖房

    部屋全体を足元から暖める「ガス温水式床暖房」。ほこりがたたずダニもでないので健康的。

収納

パントリー

パントリー

食料品やペットボトルの飲料はもちろん、普段使わない調理器具や分別用ごみ箱も置けるので、キッチン周りをすっきり綺麗に保てます。

ウォークインクローゼット

ウォークインクローゼット

洋服や小物がしっかり収納できる大型の収納空間を確保しました。居室をすっきり保ち、より広さを感じていただけます。

  • 玄関収納

    扉を閉めれば玄関はいつも綺麗。土間なのでベビーカーや砂のついたおもちゃもそのまましまえます。
    ※物件により異なります。

  • 姿見付大型シューズボックス

    靴収納量は50足以上。家族みんなの履物や備品をしっかり収納。
    ※物件により異なります。

  • 洗面室物入

    タオルや着替え、洗剤のストック品など何でも収納できる大きな物入。

  • 1階トイレ収納

    ペーパーホルダー脇の収納キャビネットに加え、備え付け収納を設置。トイレットペーパー(12個入)を袋ごと収納できる奥行を確保しています。
    ※物件により異なります。

  • 所在地

    愛知県豊橋市東小鷹野三丁目9-14他

  • 販売価格

    4,095万円 (税込) ~
    4,295万円 (税込)

  • 建物構造

    A棟:木造瓦葺2階建、C棟:木造瓦及びガルバリウム鋼板葺2階建

  • 土地面積

    192.99m2(58.37坪) ~
    193.01m2(58.38坪)

  • 建物面積

    140.39m2(42.46坪) ~
    140.52m2(42.50坪)

  • 販売戸数

    2 戸

  • 総戸数

    3 戸

  • 完成時期

    2025年12月(C棟)、2026年1月(A棟)

  • 用途地域

    第一種低層住居専用地域(建ぺい率60%・容積率100%)

  • 設備

    公営上下水道、都市ガス、中部電力

  • その他制限事項

    日影制限有

  • 取引態様

    売主

  • その他

    ・諸経費が別途必要となります。詳細については係員までお問合せ下さい。
    ・掲載の間取り図・区画図は計画段階のものを基に描き起こしたもので、実際とは異なる場合がございます。
    ・所要時間は地図上の概測距離を80m=徒歩1分、250m=自転車1分で計算したものです。
    ・駐車台数は、区画図または各間取り図に表示の自動車サイズを想定しております。車種によっては駐車台数が異なる場合があります。
    ・内観写真内の家具はモデル用又はCG加工によるものであり、実際の物件には付属していません。
    ・引渡し可能時期:即入居可
    ・次回更新予定日:情報提供日より14日以内、取引条件の有効期限:情報提供日より2か月以内

  • ※情報提供日 2026年03月11日

見学予約

ご希望の日時をお選びください

○:即時予約可能 ■:リクエスト予約(仮予約) 
TEL:お電話でお問合せください

お問い合わせ・資料請求

【豊橋支店】

0120-87-3305

※こちらをタップするとお電話が可能です

受付時間 | 10:00~19:00

資料請求はこちら

お気に入り物件に追加

ゆとりの新生活