PROPERTY DETAILS

E's Avenue 刈谷市天王町Ⅲ

お気に入り物件に追加

対象となる世帯については条件がございます。
また、本事業は予算達し次第終了となります。
詳しくは担当者までお問い合わせください。
エリアの魅力をご紹介

お気に入り物件に追加

E's Avenue 刈谷市天王町Ⅲ

棟を選択

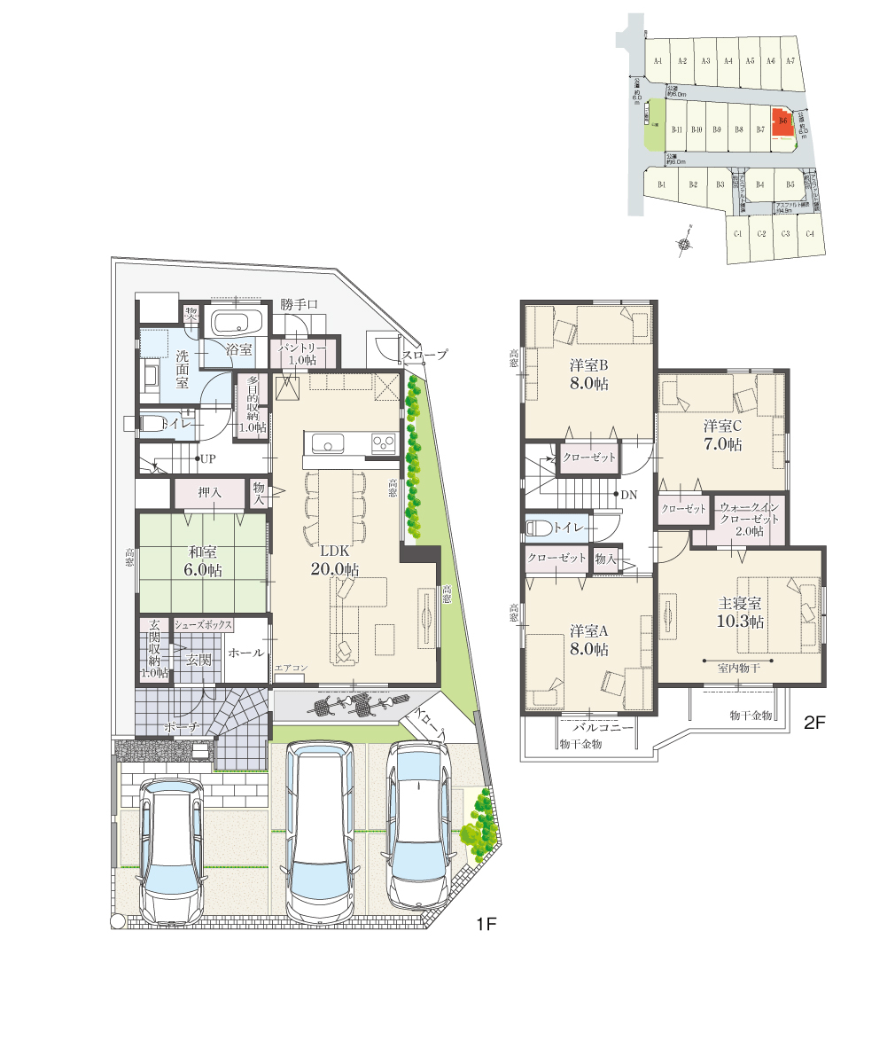
B-6

B-9

B-10

B-11

B-6 棟 5,530万円(税込)

  • 間取り:5LDK+ 多目的収納+ ウォークインクローゼット+ 玄関収納+ パントリー
  • 駐車: 3台分
  • 土地面積: 160.01m2(48.40坪)
  • 建物面積: 141.20m2(42.71坪)
  • B-6棟 外観 各棟個別にプロのコーディネーターがデザイン。 隣棟はもちろんのこと、周りの街並みとのバランスをしっかりと考えて設計。

  • B-6棟 玄関ホール ゆったりとした玄関は、来訪者様と十分お話のできる広さです。 備え付けのシューズボックスには、50足前後の靴を収納できます。

  • B-6棟 玄関収納 約50足収納できるシューズクロークに加え、コートクローク・物入れの備わった玄関。 いつでもきれいな玄関が実現します。

  • B-6棟 LDK リビングにいるお子様も、ご飯を作るママの姿が見えていつも安心。 2階へ上がるには一度リビングを通るので、自然と家族の会話も生まれます。

  • B-6棟 LDK 20帖のLDKなら、大きなソファを置いても余裕のスペースです。 ご主人様の書斎コーナーや、お子様のプレイスペースなども置けるので、家族が集まるリビングです。

  • B-6棟 和室 LDKと隣接した6帖の和室空間。 のんびりとくつろぐのも良し、お子様の遊び場としてもご活用頂けます。

  • B-6棟 キッチン お手入れ簡単、収納力、使いやすさにこだわったシステムキッチンです。 広い作業台、シンクなので、お料理も効率よく時短できます。

  • B-6棟 パントリー キッチン回りの収納には必須のパントリー。 毎日使わないホットプレート、食品のストックなどの置き場所に。

  • B-6棟 多目的収納 廊下にある多目的収納です。 リビングで使用するものを沢山収納できます。

  • B-6棟 1階トイレ タンクレストイレです。 1階はバリアフリー仕様で、幅広ドア、手すり付です。

  • B-6棟 洗面室 ワイドな900mmの洗面台に、奥行きしっかりの収納+壁備え付けの収納です。 洗面所をできるだけ広く使えるよう、たくさん収納を取り入れています。

  • B-6棟 浴室 通常よりも広い1717サイズのお風呂です。(TOTO) 足を延ばして一日の疲れを癒せます。

  • B-6棟 主寝室 10帖の主寝室なら、大きなベッドも楽々置けます。 ソファやテーブルを置き、リビングとはまた違う、ご夫婦二人だけのこだわりの空間を創ることも出来ます。

  • B-6棟 WIC 主寝室には、2帖のウォークインクローゼットがあります。 お部屋を広いまま使って頂きたいという想いから、どの部屋にも大きなクローゼットが標準です。

  • B-6棟 洋室A 2階には4部屋の洋室。ひとつひとつのお部屋が6帖以上と広く、クローゼット付き。 ベット、机を置いてもゆとりある空間となります。

  • B-6棟 洋室B 主寝室以外の各洋室にも、壁備え付けの大きな収納が標準仕様です。 最低で6帖。

  • B-6棟 洋室C 一つ一つの部屋に大きな窓がついてます。 窓の大きさは、風通しや明るさの重要なポイントです。

パノラマビュー

物件の特長

  • 小学校まで徒歩10分以内
  • 名駅ラクラク通勤
  • 2階建
  • 駐車場3台以上
  • オール電化(IHコンロ・リビングエアコン付)
  • リビングアップスルー階段
  • 玄関収納付き
  • パントリーのある家
  • リビングまたは多目的収納
  • 今すぐ引っ越し可能

区画図

区画・間取り

詳細

※横にスクロールできます。

間取り 販売価格 駐車 土地面積 建物面積 販売状況
B-6 5LDK
多目的収納
ウォークインクローゼット
玄関収納
パントリー
5,530万円
(税込)
3台分
160.01m2
(48.40坪)
141.20m2
(42.71坪)
販売中
B-9 4LDK
多目的ルーム
多目的収納
ウォークインクローゼット
玄関収納
リビング収納
パントリー
5,380万円
(税込)
3台分
160.00m2
(48.40坪)
140.51m2
(42.50坪)
販売中
B-10 4LDK
多目的収納
ウォークインクローゼット
書斎
玄関収納
パントリー
ランドリースペース
5,180万円
(税込)
3台分
140.00m2
(42.35坪)
135.21m2
(40.90坪)
販売中
B-11 5LDK
多目的収納
Wウォークインクローゼット
玄関収納
リビング収納
パントリー
5,480万円
(税込)
3台分
160.00m2
(48.40坪)
140.14m2
(42.39坪)
販売中

アクセス

※乗り換え時間含まず、曜日・時間帯により異なる場合があります。

周辺施設

交通

  • 名鉄三河線「刈谷市」駅

    名鉄三河線「刈谷市」駅

    約1,400m
    徒歩約18分
    自転車約6分

  • JR東海道本線「刈谷」駅

    JR東海道本線「刈谷」駅

    約2,800m  自転車約12分

  • 公共施設連絡バスかりまる「松坂町5丁目」停

    公共施設連絡バスかりまる「松坂町5丁目」停

    約400m  徒歩約5分

教育施設

  • こぐま保育園

    こぐま保育園

    約1,000m
    徒歩約13分
    自転車約4分

  • 衣浦幼児園

    衣浦幼児園

    約470m
    徒歩約6分
    自転車約2分

  • 衣浦小学校

    衣浦小学校

    約470m  徒歩約6分

  • 刈谷南中学校(自転車通学可)

    刈谷南中学校(自転車通学可)

    約2,500m
    徒歩約32分
    自転車約10分

買い物

  • ゲンキー 小垣江下広店

    ゲンキー 小垣江下広店

    約1,800m  自転車約8分 車約3分

  • イオンモール東浦

    イオンモール東浦

    約1,950m  自転車約8分 車約3分

  • スギ薬局 富士見店

    スギ薬局 富士見店

    約1,200m
    徒歩約15分
    自転車約5分

病院

  • 田中ハートクリニック

    田中ハートクリニック

    約760m
    徒歩約10分
    自転車約4分

  • まつい消化器内科クリニック

    約1,140m
    徒歩約15分
    自転車約5分

  • 刈谷豊田総合病院

    刈谷豊田総合病院

    約1,970m  自転車約8分 車約3分

公共施設

  • 衣浦小東遊園

    衣浦小東遊園

    約80m
    徒歩約1分
    自転車約1分

  • 松坂公園

    松坂公園

    約440m
    徒歩約6分
    自転車約2分

  • 亀城公園

    亀城公園

    約2,000m  自転車約8分 車約3分

  • 刈谷市役所

    約2,400m  自転車約10分 車約4分

  • 刈谷市中央図書館・美術館

    刈谷市中央図書館・美術館

    約2,000m  自転車約8分 車約3分

玄関

外構工事

外構工事

植栽・生垣などを施した外構工事により、緑あふれる自然景観を楽しむ生活を演出。(当社施工実績)
【宅配ボックス】全棟標準設置です。
※物件により一部仕様が異なる場合がございます。

  • 宅配ボックス

    外出時も荷物の受け取りが可能な宅配ボックスを標準設置。毎日の暮らしにゆとりをもたらすプラスワン設備です。

  • ポケットkey

    専用アプリをインストールすれば、スマートフォンが専用キーに早変わり。スマートフォンを取り出さずにカギを施錠解錠したり、アプリ操作で施錠解錠できます。

  • 人感センサーLEDポーチ灯

    暗くなると自動点灯でお出迎え。深夜は人が近づいた時だけ点灯し防犯対策に役立ちます。

  • 玄関ドア

    断熱性と防犯性を兼ね備えた玄関ドア。子扉を開ければ大きな荷物も楽に運べます。

  • 録画機能付テレビドアホン

    来訪者画像を自動で録画・保存(1枚録画:100件)できる録画機能を内蔵。帰宅後、モニター画面で確認できます。

キッチン

多機能システムキッチン

多機能システムキッチン

基本機能を追求した快適なエサキホームオリジナルシステムキッチン。

  • IHクッキングヒーター

    本格調理が楽しめる左右3.0Kwの大火力。凹凸がなくお手入れ簡単。吹きこぼれも一拭きでいつも清潔。

  • 浄水器兼用混合栓

    スタイリッシュな空間にも合うミニマルデザイン。プッシュボタンを押すだけで簡単に浄水/原水が切り替わり、浄水と原水の両方でシャワーもストレートも吐水可能。

  • 食器洗い乾燥機

    フライパンや鍋も入る大容量サイズ。奥までフルに引き出せて、真上からラクにセット可能。

  • 鏡面仕上げキッチンパネル

    目地の少ない大判パネルでお手入れ簡単。キズに強く、がんこな油汚れもサッとひと拭き。

  • スマートフードⅡ

    リモコン対応、フード照明にLEDを採用。フード底面をフラットにすることでお手入れも簡単。

  • 人大スキマレスシンク

    継ぎ目の隙間がないので汚れがたまりにくい。水切りにも調理スペースにもなる『スラくるネット』付き。

  • カウンタ―側面コンセント

    ミキサーやハンドブレンダーなどの電源に便利な2口コンセント。カウンターでコーヒーメーカーや電気ポットなどの使用時にも活躍。

  • フロアユニット収納

    ソフトクロージング機能、ロック機能付き包丁差し、上置きトレーなど、たっぷり入って出し入れスマート。

洗面・バスルーム

システムバス

システムバス

少し大きめ1717(1坪)サイズ。バリアフリー仕様のシステムバス。保温材付きの魔法びん浴槽。お掃除ラクラクほっカラリ床。

収納付シャンプードレッサー(W900+300mm)

収納付シャンプードレッサー(W900+300mm)

お掃除ラクラク、鏡の後ろにもたっぷり収納できるシャンプードレッサー。
2段引き出しタイプのキャビネットはたっぷりの収納スペースがあるので、収納物がひと目で見渡せます。水栓・すべり台ボウル、タッチレスワイドLED・エコミラーなど工夫がいっぱい。ゆとりある洗面空間を実現。

  • 魔法びん浴槽

    4時間経ってもお湯の温度低下はわずか2.5度。家族みんなであったかいお風呂に入れます。

  • ゆるリラ浴槽(人大浴槽)

    腰、背中、お尻、足の4点を支えることで身体にかかる力を分散し、入浴する人をやさしく包み込み支えます。自然とリラックス姿勢に導く癒しの形状です。

  • コンフォートウエーブシャワー

    従来品より35パーセントの節水でも、水量感たっぷり。

  • ほっカラリ床

    表面の水を誘導し、翌朝にはカラリと乾き靴下のまま入っても大丈夫。親水パワーの効果で軽くこすれば汚れがスッキリ、お掃除もラクラク。

  • 浴室暖房乾燥機

    衣類乾燥、換気、暖房、涼風と1台4役の浴室乾燥機。

  • エコキュート

    空気の熱でお湯をつくるエコロジーな電気給湯器。夜間電力を利用するので光熱費の節約にもなります。

  • ウォシュレット一体型トイレ

    フチなし形状&トルネード洗浄でお掃除ラクラク。従来品に比べ洗浄水量を約7割カット。ウォシュレット機能付トイレ

  • ホスクリーン(室内物干)

    ポールがワンタッチで着脱可能なスポット型物干し。 非使用時は壁掛けフックに収納でお部屋スッキリ。雨や台風のシーズンや花粉の季節でも安心して洗濯物を干せる。急な雨の時もパッと室内に取り込むのに便利。

建材・エアコン・窓

2.4mハイドア

2.4mハイドア

床から天井まである2.4mのハイドアで、空間に開放感をもたらします。

フローリング

フローリング

無垢の風合いと深みを表現した、自然を感じる床材です。

  • 高性能エアコン

    高い省エネ性と充実の機能を兼ね備えたハイスペックモデル。熱交換器加熱除菌でエアコン内部もお部屋の空気も清潔。AIでオーダーメイドの快適を実現。

  • アルミと樹脂のハイブリット構造で高断熱と結露軽減を実現。ガラス面は高遮熱仕様のアルゴンガス入りLow-E複層ガラスを採用。

収納

パントリー

パントリー

食料品やペットボトルの飲料はもちろん、普段使わない調理器具や分別用ごみ箱も置けるので、キッチン周りをすっきり綺麗に保てます。

ウォークインクローゼット

ウォークインクローゼット

洋服や小物がしっかり収納できる大型の収納空間を確保しました。居室をすっきり保ち、より広さを感じていただけます。

  • 玄関収納

    扉を閉めれば玄関はいつも綺麗。土間なのでベビーカーや砂のついたおもちゃもそのまましまえます。
    ※物件により異なります。

  • 姿見付大型シューズボックス

    靴収納量は50足以上。家族みんなの履物や備品をしっかり収納。
    ※物件により異なります。

  • 洗面室物入

    タオルや着替え、洗剤のストック品など何でも収納できる大きな物入。

  • 1階トイレ収納

    ペーパーホルダー脇の収納キャビネットに加え、備え付け収納を設置。トイレットペーパー(12個入)を袋ごと収納できる奥行を確保しています。

  • 所在地

    愛知県刈谷市天王町五丁目28-19他

  • 販売価格

    5,180万円 (税込) ~
    5,530万円 (税込)

  • 建物構造

    木造瓦葺2階建

  • 土地面積

    140.00m2(42.35坪) ~
    160.01m2(48.40坪)

  • 建物面積

    135.21m2(40.90坪) ~
    141.20m2(42.71坪)

  • 販売戸数

    4 戸

  • 総戸数

    22 戸

  • 完成時期

    2025年7月(B-9・10・11棟)、2025年8月(B-6棟)

  • 用途地域

    第一種中高層住居専用地域(建ぺい率60%・容積率150%)

  • 設備

    公営上下水道、中部電力(オール電化)

  • 開発許可

    4刈建第1-3号

  • 建築確認
    番号

    第R05確認建築愛建住セ10692号(2024.3.14)他

  • その他制限事項

    敷地面積最低限度有、日影制限有

  • 取引態様

    売主

  • その他

    ・諸経費が別途必要となります。詳細については係員までお問合せ下さい。
    ・掲載の間取り図・区画図は計画段階のものを基に描き起こしたもので、実際とは異なる場合がございます。
    ・所要時間は地図上の概測距離を80m=徒歩1分、250m=自転車1分、車は時速40㎞で計算したものです。
    ・駐車台数は、区画図または各間取り図に表示の自動車サイズを想定しております。車種によっては駐車台数が異なる場合があります。
    ・内観写真内の家具はモデル用又はCG加工によるものであり、実際の物件には付属していません。
    ・引渡し可能時期:即入居可
    ・次回更新予定日:情報提供日より14日以内、取引条件の有効期限:情報提供日より2か月以内

  • ※情報提供日 2025年12月02日

見学予約

ご希望の日時をお選びください

○:即時予約可能 ■:リクエスト予約(仮予約) 
TEL:お電話でお問合せください

お問い合わせ・資料請求

【岡崎支店】

0120-19-1183

※こちらをタップするとお電話が可能です

受付時間 | 10:00~19:00

資料請求はこちら

お気に入り物件に追加

住宅見学会