PROPERTY DETAILS

E's garden 豊田市中田町

お気に入り物件に追加

※E・F・G棟が対象となります。
対象となる世帯等の条件がございます。詳しくは担当者までお問い合わせください。
※E・F・G棟は対象外となります。

お気に入り物件に追加

E's garden 豊田市中田町

棟を選択

E

F

I

J

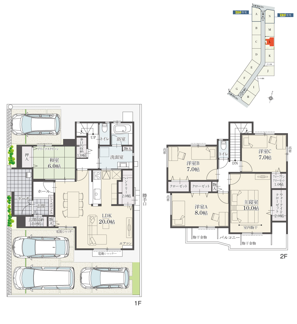
E 棟 4,830万円(税込)

  • 間取り:5LDK+ Wウォークインクローゼット+ 玄関収納+ パントリー+ ランドリースペース
  • 駐車: 4台分
  • 土地面積: 166.31m2(50.30坪)
  • 建物面積: 140.52m2(42.50坪)
  • 【E棟 外観】 各棟個別にプロのコーディネーターがデザイン。 隣棟はもちろんのこと、周りの街並みとのバランスをしっかりと考えて設計。

  • 【E棟 玄関ホール】 住まう人も来客も入った時にワクワクさせてくれるオシャレな玄関。 収納もたっぷりあるので、靴がたくさんあっても安心。

  • 【E棟 LDK】 この広さなら、ご主人様の書斎やお子様のプレイスペースも楽々作れます。 みんなが集まるリビングで、家族の笑顔がいつも見られる素敵な暮らしをご提供します。

  • 【E棟 和室】 LDKと隣接した6.2帖の和室空間。 のんびりとくつろぐのも良し、お子様の遊び場としてもご活用頂けます。

  • 【E棟 キッチン】 お手入れ簡単、収納力、使いやすさにこだわったシステムキッチンです。 広い作業台、シンクなので、お料理も効率よく時短できます。

  • 【E棟 パントリー】 食品や食器などを収納できるパントリー。 もちろんそれ以外にも、普段はあまり使わない調理器具をしまうなど、その使い勝手は多様。

  • 【E棟 洗面室】 ランドリースペース付きの洗面室。洗う、干す、畳むが一室で完結します。

  • 【E棟 浴室】 通常よりも広い1717サイズのお風呂です。(TOTO) 足を延ばして一日の疲れを癒せます。

  • 【E棟 1階トイレ】 TOTO・ウォシュレット付。 宅内車いす対応で、幅の広いドアを使っています。

  • 【E棟 2階洗面台】 混雑する朝でも2か所洗面台があればゆとりのある生活を送れます。

  • 【E棟 主寝室】 10帖の主寝室なら、大きなベッドも楽々置けます。 ソファやテーブルを置き、リビングとはまた違う、ご夫婦二人だけのこだわりの空間を創ることも出来ます。

  • 【E棟 WIC】 広い部屋をより広く使えるように、主寝室にはウォークインクローゼットを設置。 大切な衣類やかばんなどを たくさんしまっておけます。

  • 【E棟 洋室A】 一つ一つの部屋に大きな窓がついてます。 窓の大きさは、風通しや明るさの重要なポイントです。

  • 【E棟 洋室B】 2階には4部屋の洋室。 ひとつひとつのお部屋が6帖以上と広く、クローゼット付き。

  • 【E棟 洋室C】 主寝室以外の各洋室にも、壁備え付けの大きな収納が標準仕様です。

  • 【E棟】外観イメージ

  • 建築物省エネ法に基づく建築物の省エネ性能ラベルとなります。

パノラマビュー

物件の特長

  • 名駅ラクラク通勤
  • 2階建
  • 駐車場3台以上
  • オール電化(IHコンロ・リビングエアコン付)
  • リビングアップスルー階段
  • ランドリースペース・ルーム付き
  • 玄関収納付き
  • パントリーのある家
  • 電動シャッター
  • 2階洗面
  • 今すぐ引っ越し可能

区画図

区画・間取り

詳細

※横にスクロールできます。

間取り 販売価格 駐車 土地面積 建物面積 販売状況
E 5LDK
Wウォークインクローゼット
玄関収納
パントリー
ランドリースペース
4,830万円
(税込)
4台分
166.31m2
(50.30坪)
140.52m2
(42.50坪)
販売中
F 5LDK
ウォークインクローゼット
玄関収納
パントリー
ランドリールーム
4,830万円
(税込)
4台分
166.38m2
(50.32坪)
140.48m2
(42.49坪)
販売中
H 予約済
I 5LDK
ウォークインクローゼット
玄関収納
コートクローク
リビング収納
パントリー
4,730万円
(税込)
3台分
165.68m2
(50.11坪)
141.23m2
(42.72坪)
販売中
J 5LDK
ウォークインクローゼット
玄関収納
リビング収納
パントリー
5,230万円
(税込)
4台分
192.52m2
(58.23坪)
140.67m2
(42.55坪)
販売中

アクセス

※乗り換え時間含まず、曜日・時間帯により異なる場合があります。

周辺施設

交通

  • 名鉄名古屋本線「富士松」駅

    名鉄名古屋本線「富士松」駅

    約2,940m  自転車約12分

  • 名鉄名古屋本線「一ツ木」駅

    名鉄名古屋本線「一ツ木」駅

    約3,290m  自転車約14分

  • 名鉄名古屋本線・三河線「知立」駅

    名鉄名古屋本線・三河線「知立」駅

    約3,650m  自転車約15分

  • 名鉄バス「逢見山」停

    名鉄バス「逢見山」停

    約830m  徒歩約11分

教育施設

  • 駒場こども園

    約1,840m
    徒歩約23分
    自転車約8分

  • 豊田星ケ丘幼稚園

    豊田星ケ丘幼稚園

    約1,020m
    徒歩約13分
    自転車約5分

  • 刈谷大和幼稚園

    刈谷大和幼稚園

    約750m
    徒歩約10分
    自転車約3分

  • 駒場小学校

    駒場小学校

    約1,700m  徒歩約22分

  • 前林中学校(自転車通学可)

    前林中学校(自転車通学可)

    約3,320m
    徒歩約42分
    自転車約14分

買い物

  • イオンタウン刈谷

    イオンタウン刈谷

    約1,850m
    徒歩約24分
    自転車約8分

  • ショッピーやまね

    約1,130m
    徒歩約15分
    自転車約5分

  • V・drug 富士松店

    V・drug 富士松店

    約960m
    徒歩約12分
    自転車約4分

病院

  • 一里山・今井病院

    一里山・今井病院

    約960m
    徒歩約12分
    自転車約4分

  • 杉浦医院

    杉浦医院

    約1,310m
    徒歩約17分
    自転車約6分

  • 中野胃腸病院

    中野胃腸病院

    約1,880m
    徒歩約24分
    自転車約8分

  • 星ケ丘たなかこどもクリニック

    約2,020m
    徒歩約26分
    自転車約9分

公共施設

  • 金山運動広場

    金山運動広場

    約580m
    徒歩約8分
    自転車約3分

その他

  • 刈谷ハイウェイオアシス

    刈谷ハイウェイオアシス

    約1,300m
    徒歩約17分
    自転車約6分

  • 刈谷東境郵便局

    刈谷東境郵便局

    約870m
    徒歩約11分
    自転車約4分

玄関

外構工事

外構工事

植栽・生垣などを施した外構工事により、緑あふれる自然景観を楽しむ生活を演出。(当社施工実績)
【宅配ボックス】全棟標準設置です。
※物件により一部仕様が異なる場合がございます。

  • 宅配ボックス

    外出時も荷物の受け取りが可能な宅配ボックスを標準設置。毎日の暮らしにゆとりをもたらすプラスワン設備です。

  • ポケットkey

    専用アプリをインストールすれば、スマートフォンが専用キーに早変わり。スマートフォンを取り出さずにカギを施錠解錠したり、アプリ操作で施錠解錠できます。

  • 人感センサーLEDポーチ灯

    暗くなると自動点灯でお出迎え。深夜は人が近づいた時だけ点灯し防犯対策に役立ちます。

  • 玄関ドア

    断熱性と防犯性を兼ね備えた玄関ドア。さらに安心さをプラスするロック機構「ドアガード」付き。また通風機構により生活シーンに合せた玄関の通風・換気が可能です。

  • 録画機能付テレビドアホン

    来訪者画像を自動で録画・保存(1枚録画:100件)できる録画機能を内蔵。帰宅後、モニター画面で確認できます。

  • EV充電用屋外コンセント

    電気自動車(EV)の充電が自宅で手軽にできます。電圧は200V、充電中のケーブルのいたずらを防止するカバー付き。これからの未来に欠かせないシステムの一つです。

キッチン

多機能システムキッチン

多機能システムキッチン

基本機能を追求した快適なエサキホームオリジナルシステムキッチン。
※一部仕様が異なる場合がございます。

  • IHクッキングヒーター

    本格調理が楽しめる左右3.0Kwの大火力。凹凸がなくお手入れ簡単。吹きこぼれも一拭きでいつも清潔。

  • 人大スキマレスシンク

    継ぎ目の隙間がないので汚れがたまりにくい。水切りにも調理スペースにもなる『スラくるネット』付き。

  • 浄水器兼用混合栓

    スタイリッシュな空間にも合うミニマルデザイン。プッシュボタンを押すだけで簡単に浄水/原水が切り替わり、浄水と原水の両方でシャワーもストレートも吐水可能。

  • 食器洗い乾燥機

    庫内が深く容量も大きい深型食洗機。たくさんの食器、鍋やフライパンなど大きな調理器具も一緒に洗えて便利。奥までフルに引き出せて、真上からラクにセット可能。

  • スマートフードⅡ

    リモコン対応、フード照明にLEDを採用。フード底面をフラットにすることでお手入れも簡単。

  • 鏡面仕上げキッチンパネル

    目地の少ない大判パネルでお手入れ簡単。キズに強く、がんこな油汚れもサッとひと拭き。

  • カウンタ―側面コンセント

    ミキサーやハンドブレンダーなどの電源に便利な2口コンセント。カウンターでコーヒーメーカーや電気ポットなどの使用時にも活躍。

  • フロアユニット収納

    ソフトクロージング機能、ロック機能付き包丁差し、上置きトレーなど、たっぷり入って出し入れスマート。

洗面・バスルーム

システムバス

システムバス

少し大きめ1717(1坪)サイズ。バリアフリー仕様のシステムバス。保温材付きの魔法びん浴槽。お掃除ラクラクほっカラリ床。

収納付シャンプードレッサー(W900+300mm)

収納付シャンプードレッサー(W900+300mm)

お掃除ラクラク、鏡の後ろにもたっぷり収納できるシャンプードレッサー。
2段引き出しタイプのキャビネットはたっぷりの収納スペースがあるので、収納物がひと目で見渡せます。水栓・すべり台ボウル、タッチレスワイドLED・エコミラーなど工夫がいっぱい。ゆとりある洗面空間を実現。

  • 2階 収納付洗面化粧台

    2階にセカンド洗面を設けることで、朝の洗面の混雑を緩和するとともに2階バルコニー等の清掃にも利用できて便利です。

  • 魔法びん浴槽

    4時間経ってもお湯の温度低下はわずか2.5度。家族みんなであったかいお風呂に入れます。

  • コンフォートウエーブシャワー

    従来品より35パーセントの節水でも、水量感たっぷり。

  • ほっカラリ床

    表面の水を誘導し、翌朝にはカラリと乾き靴下のまま入っても大丈夫。親水パワーの効果で軽くこすれば汚れがスッキリ、お掃除もラクラク。

  • 浴室暖房乾燥機

    衣類乾燥、換気、暖房、涼風と1台4役の浴室乾燥機。

  • エコキュート

    空気の熱でお湯をつくるエコロジーな電気給湯器。夜間電力を利用するので光熱費の節約にもなります。

  • ウォシュレット一体型トイレ

    フチなし形状&トルネード洗浄でお掃除ラクラク。従来品に比べ洗浄水量を約7割カット。ウォシュレット機能付トイレ

  • ホスクリーン(室内物干)

    ポールがワンタッチで着脱可能なスポット型物干し。 非使用時は壁掛けフックに収納でお部屋スッキリ。雨や台風のシーズンや花粉の季節でも安心して洗濯物を干せる。急な雨の時もパッと室内に取り込むのに便利。

建材・エアコン・窓

2.4mハイドア

2.4mハイドア

床から天井まである2.4mのハイドアで、空間に開放感をもたらします。

フローリング

フローリング

無垢の風合いと深みを表現した、自然を感じる床材です。

電動シャッター (1F/リビング掃き出し窓側)

電動シャッター (1F/リビング掃き出し窓側)

毎日の上げ下げをリモコン一つで快適に。シャッターの開閉音も気にならないし、開閉時の雨風や虫などの侵入も電動シャッターなら安心。

高性能エアコン

高性能エアコン

高い省エネ性と充実の機能を兼ね備えたハイスペックモデル。熱交換器加熱除菌でエアコン内部もお部屋の空気も清潔。AIでオーダーメイドの快適を実現。

窓

アルミと樹脂のハイブリット構造で高断熱と結露軽減を実現。ガラス面は高遮熱仕様のアルゴンガス入りLow-E複層ガラスを採用。

収納

パントリー

パントリー

食料品やペットボトルの飲料はもちろん、普段使わない調理器具や分別用ごみ箱も置けるので、キッチン周りをすっきり綺麗に保てます。

ウォークインクローゼット

ウォークインクローゼット

洋服や小物がしっかり収納できる大型の収納空間を確保しました。居室をすっきり保ち、より広さを感じていただけます。

  • 玄関収納

    扉を閉めれば玄関はいつも綺麗。土間なのでベビーカーや砂のついたおもちゃもそのまましまえます。
    ※物件により異なります。

  • 姿見付大型シューズボックス

    靴収納量は50足以上。家族みんなの履物や備品をしっかり収納。
    ※物件により異なります。

  • 洗面室物入

    タオルや着替え、洗剤のストック品など何でも収納できる大きな物入。

  • 1階トイレ収納

    ペーパーホルダー脇の収納キャビネットに加え、備え付け収納を設置。トイレットペーパー(12個入)を袋ごと収納できる奥行を確保しています。
    ※物件により異なります。

  • 所在地

    愛知県豊田市中田町西山8-15他

  • 販売価格

    4,730万円 (税込) ~
    5,230万円 (税込)

  • 建物構造

    E・F・I棟:木造瓦葺2階建、J棟:木造瓦及びガルバリウム鋼板葺2階建

  • 土地面積

    165.68m2(50.11坪) ~
    192.52m2(58.23坪)

  • 建物面積

    140.48m2(42.49坪) ~
    141.23m2(42.72坪)

  • 販売戸数

    4 戸

  • 総戸数

    14 戸

  • 完成時期

    2026年5月(E・F棟)、2026年5月下旬予定(I・J棟)

  • 用途地域

    市街化調整区域 (建ぺい率60%・容積率200%)

  • 設備

    公営上下水道、中部電力(オール電化)

  • 開発許可

    豊開調発第041-132号

  • 建築確認
    番号

    確認サービス第KS125-0420-58041号(2025.10.21)他

  • その他制限事項

    景観法による規制有、都市再生特別地区、高さ最高限度有、敷地面積最低限度有、日影制限有

  • 取引態様

    売主

  • その他

    ・諸経費が別途必要となります。詳細については係員までお問合せ下さい。
    ・掲載の間取り図・区画図は計画段階のものを基に描き起こしたもので、実際とは異なる場合がございます。
    ・所要時間は地図上の概測距離を80m=徒歩1分、250m=自転車1分で計算したものです。
    ・駐車台数は、区画図または各間取り図に表示の自動車サイズを想定しております。車種によっては駐車台数が異なる場合があります。
    ・内観写真内の家具はモデル用又はCG加工によるものであり、実際の物件には付属していません。
    ・引渡し可能時期:E・F棟は即入居可、I・J棟は完成時期以降となります。
    ・次回更新予定日:情報提供日より14日以内、取引条件の有効期限:情報提供日より2か月以内

  • ※情報提供日 2026年05月18日

見学予約

ご希望の日時をお選びください

○:即時予約可能 ■:リクエスト予約(仮予約)
×:予約不可日 TEL:お電話でお問合せください

お問い合わせ・資料請求

【岡崎支店】

0120-19-1183

※こちらをタップするとお電話が可能です

受付時間 | 10:00~19:00

資料請求はこちら

お気に入り物件に追加

ゆとりの新生活