PROPERTY DETAILS

E's garden 安城市古井町上寺Ⅱ

お気に入り物件に追加

対象となる世帯等の条件がございます。詳しくは担当者までお問い合わせください。
エリアの魅力をご紹介

お気に入り物件に追加

E's garden 安城市古井町上寺Ⅱ

棟を選択

D

E

F

G

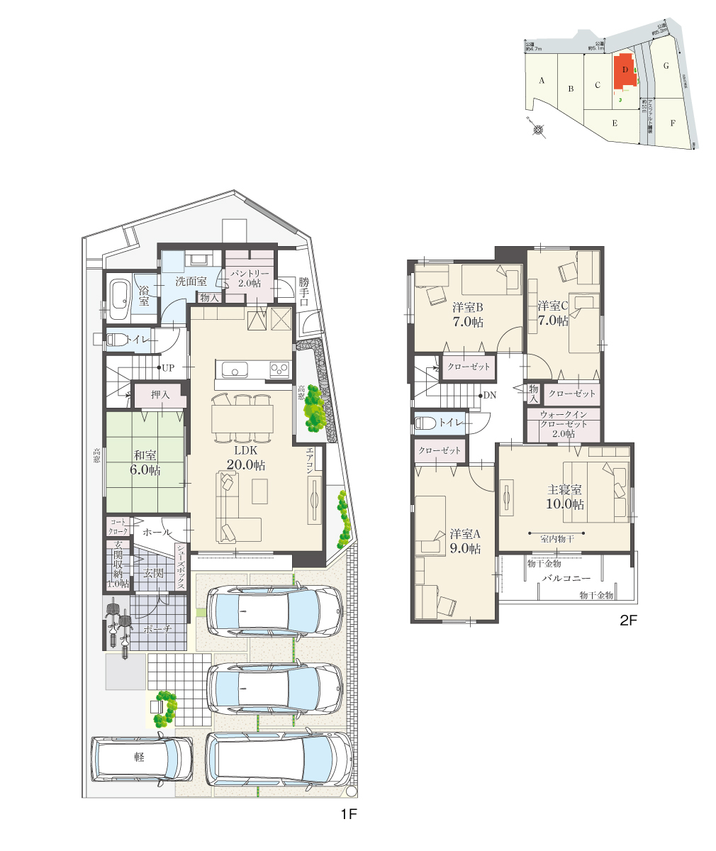
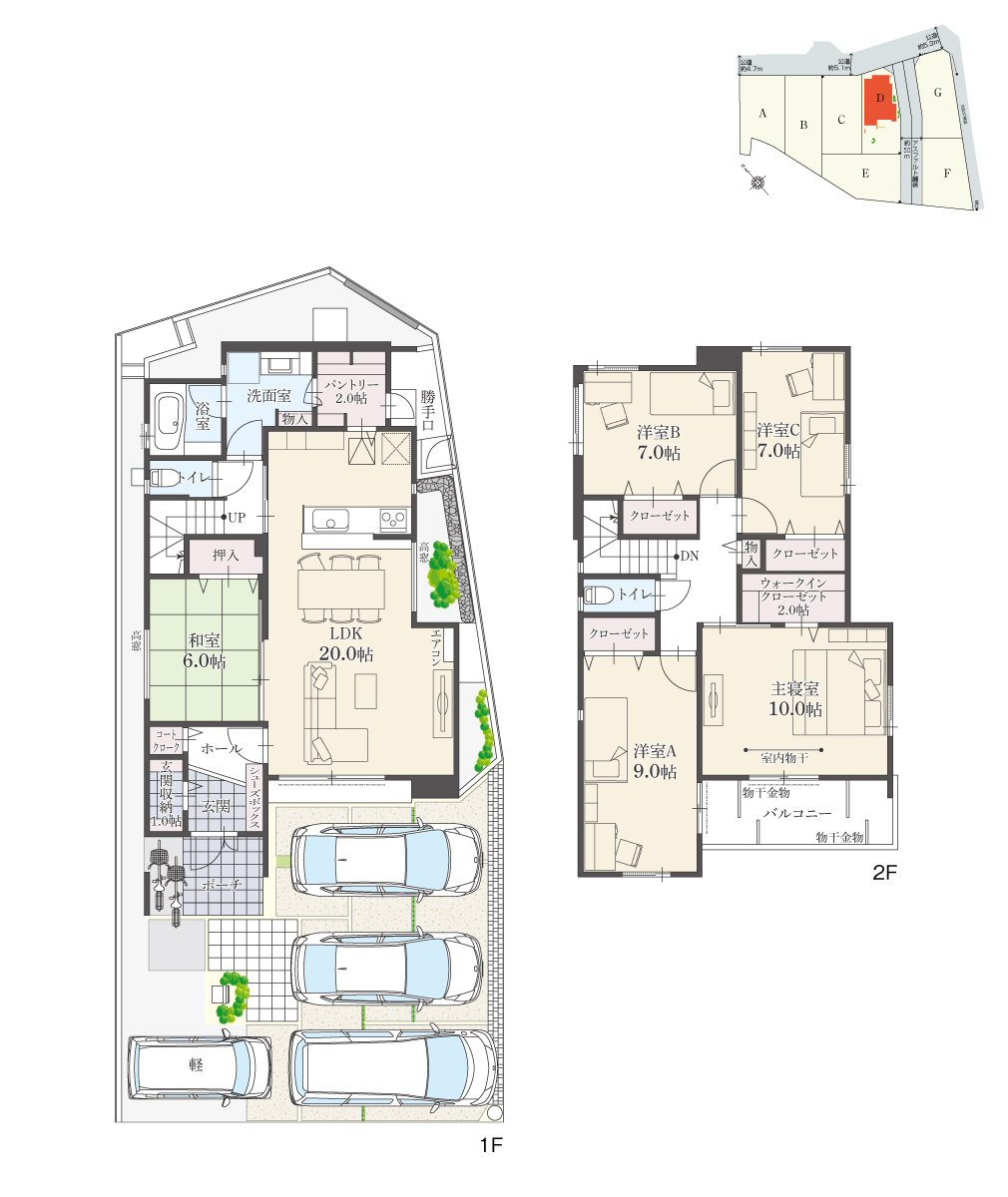
D 棟 5,080万円(税込)

  • 間取り:5LDK+ ウォークインクローゼット+ 玄関収納+ コートクローク+ パントリー
  • 駐車: 4台分
  • 土地面積: 170.90m2(51.69坪)
  • 建物面積: 140.51m2(42.50坪)
  • 備考:*有効土地面積/168.28㎡(50.90坪)
  • 【D棟】外観イメージ

  • 建築物省エネ法に基づく建築物の省エネ性能ラベルとなります。

物件の特長

  • 小学校まで徒歩10分以内
  • 最寄り駅まで徒歩10分以内
  • 名駅ラクラク通勤
  • 2階建
  • 駐車場3台以上
  • オール電化(IHコンロ・リビングエアコン付)
  • リビングアップスルー階段
  • 玄関収納付き
  • パントリーのある家

区画図

区画・間取り

詳細

※横にスクロールできます。

間取り 販売価格 駐車 土地面積 建物面積 販売状況
D 5LDK
ウォークインクローゼット
玄関収納
コートクローク
パントリー
5,080万円
(税込)
4台分
170.90m2
(51.69坪)
140.51m2
(42.50坪)
販売中
E 5LDK
多目的収納
ウォークインクローゼット
玄関収納
パントリー
ランドリースペース
4,980万円
(税込)
4台分
256.91m2
(77.71坪)
140.52m2
(42.50坪)
販売中
F 5LDK
Wウォークインクローゼット
玄関収納
パントリー
ランドリースペース
4,980万円
(税込)
3台分
255.89m2
(77.40坪)
141.62m2
(42.84坪)
販売中
G 5LDK
Wウォークインクローゼット
玄関収納
コートクローク
パントリー
ランドリースペース
5,130万円
(税込)
3台分
173.12m2
(52.36坪)
140.45m2
(42.48坪)
販売中

アクセス

※乗り換え時間含まず、曜日・時間帯により異なる場合があります。

周辺施設

交通

  • 名鉄西尾線「碧海古井」駅

    名鉄西尾線「碧海古井」駅

    約620m
    徒歩約8分
    自転車約3分

  • JR東海道本線「安城」駅

    JR東海道本線「安城」駅

    約2,540m  自転車約11分

  • あんくるバス「古井北」停

    約490m  徒歩約7分

教育施設

  • 南部保育園

    南部保育園

    約470m
    徒歩約6分
    自転車約2分

  • 愛知学泉大学附属幼稚園

    愛知学泉大学附属幼稚園

    約1,270m
    徒歩約16分
    自転車約6分

  • 安城南部小学校

    安城南部小学校

    約650m  徒歩約9分

  • 安祥中学校

    安祥中学校

    約690m  徒歩約9分

買い物

  • アオキスーパー 古井店

    アオキスーパー 古井店

    約470m
    徒歩約6分
    自転車約2分

  • V・drug 安城南店

    V・drug 安城南店

    約550m
    徒歩約7分
    自転車約3分

  • ヤマナカ 安城フランテ館

    ヤマナカ 安城フランテ館

    約1,130m
    徒歩約15分
    自転車約5分

  • バロー 安城日の出店

    バロー 安城日の出店

    約1,700m
    徒歩約22分
    自転車約7分

病院

  • わしだクリニック

    わしだクリニック

    約290m
    徒歩約4分
    自転車約2分

  • 安城真クリニック

    安城真クリニック

    約320m
    徒歩約4分
    自転車約2分

  • やました内科小児科クリニック

    やました内科小児科クリニック

    約1,470m
    徒歩約19分
    自転車約6分

  • 安城更生病院

    安城更生病院

    約1,650m
    徒歩約21分
    自転車約7分

公共施設

  • 古井上寺遊園

    古井上寺遊園

    約50m
    徒歩約1分
    自転車約1分

  • 秋葉公園

    秋葉公園

    約1,370m
    徒歩約18分
    自転車約6分

  • 堀内公園

    堀内公園

    約1,500m
    徒歩約19分
    自転車約6分

  • 安城産業文化公園 デンパーク

    安城産業文化公園 デンパーク

    約3,590m  自転車約15分 車約6分

  • 安城市役所

    安城市役所

    約2,870m  自転車約12分 車約5分

  • 歴史博物館

    歴史博物館

    約980m
    徒歩約13分
    自転車約4分

その他

  • 安城コロナワールド

    安城コロナワールド

    約1,800m  自転車約8分 車約3分

玄関

外構工事

外構工事

植栽・生垣などを施した外構工事により、緑あふれる自然景観を楽しむ生活を演出。(当社施工実績)
【宅配ボックス】全棟標準設置です。
※物件により一部仕様が異なる場合がございます。

  • 宅配ボックス

    外出時も荷物の受け取りが可能な宅配ボックスを標準設置。毎日の暮らしにゆとりをもたらすプラスワン設備です。

  • ポケットkey

    専用アプリをインストールすれば、スマートフォンが専用キーに早変わり。スマートフォンを取り出さずにカギを施錠解錠したり、アプリ操作で施錠解錠できます。

  • 人感センサーLEDポーチ灯

    暗くなると自動点灯でお出迎え。深夜は人が近づいた時だけ点灯し防犯対策に役立ちます。

  • 玄関ドア

    断熱性と防犯性を兼ね備えた玄関ドア。さらに安心さをプラスするロック機構「ドアガード」付き。また通風機構により生活シーンに合せた玄関の通風・換気が可能です。

  • 録画機能付テレビドアホン

    来訪者画像を自動で録画・保存(1枚録画:100件)できる録画機能を内蔵。帰宅後、モニター画面で確認できます。

キッチン

多機能システムキッチン

多機能システムキッチン

基本機能を追求した快適なエサキホームオリジナルシステムキッチン。
※一部仕様が異なる場合がございます。

  • IHクッキングヒーター

    本格調理が楽しめる左右3.0Kwの大火力。凹凸がなくお手入れ簡単。吹きこぼれも一拭きでいつも清潔。

  • 人大スキマレスシンク

    継ぎ目の隙間がないので汚れがたまりにくい。水切りにも調理スペースにもなる『スラくるネット』付き。

  • 浄水器兼用混合栓

    スタイリッシュな空間にも合うミニマルデザイン。プッシュボタンを押すだけで簡単に浄水/原水が切り替わり、浄水と原水の両方でシャワーもストレートも吐水可能。

  • 食器洗い乾燥機

    庫内が深く容量も大きい深型食洗機。たくさんの食器、鍋やフライパンなど大きな調理器具も一緒に洗えて便利。奥までフルに引き出せて、真上からラクにセット可能。

  • スマートフードⅡ

    リモコン対応、フード照明にLEDを採用。フード底面をフラットにすることでお手入れも簡単。

  • 鏡面仕上げキッチンパネル

    目地の少ない大判パネルでお手入れ簡単。キズに強く、がんこな油汚れもサッとひと拭き。

  • カウンタ―側面コンセント

    ミキサーやハンドブレンダーなどの電源に便利な2口コンセント。カウンターでコーヒーメーカーや電気ポットなどの使用時にも活躍。

  • フロアユニット収納

    ソフトクロージング機能、ロック機能付き包丁差し、上置きトレーなど、たっぷり入って出し入れスマート。

洗面・バスルーム

システムバス

システムバス

少し大きめ1717(1坪)サイズ。バリアフリー仕様のシステムバス。保温材付きの魔法びん浴槽。お掃除ラクラクほっカラリ床。

収納付シャンプードレッサー(W900+300mm)

収納付シャンプードレッサー(W900+300mm)

お掃除ラクラク、鏡の後ろにもたっぷり収納できるシャンプードレッサー。
2段引き出しタイプのキャビネットはたっぷりの収納スペースがあるので、収納物がひと目で見渡せます。水栓・すべり台ボウル、タッチレスワイドLED・エコミラーなど工夫がいっぱい。ゆとりある洗面空間を実現。

  • 魔法びん浴槽

    4時間経ってもお湯の温度低下はわずか2.5度。家族みんなであったかいお風呂に入れます。

  • ゆるリラ浴槽(人大浴槽)

    腰、背中、お尻、足の4点を支えることで身体にかかる力を分散し、入浴する人をやさしく包み込み支えます。自然とリラックス姿勢に導く癒しの形状です。

  • コンフォートウエーブシャワー

    従来品より35パーセントの節水でも、水量感たっぷり。

  • ほっカラリ床

    表面の水を誘導し、翌朝にはカラリと乾き靴下のまま入っても大丈夫。親水パワーの効果で軽くこすれば汚れがスッキリ、お掃除もラクラク。

  • 浴室暖房乾燥機

    衣類乾燥、換気、暖房、涼風と1台4役の浴室乾燥機。

  • エコキュート

    空気の熱でお湯をつくるエコロジーな電気給湯器。夜間電力を利用するので光熱費の節約にもなります。

  • ウォシュレット一体型トイレ

    フチなし形状&トルネード洗浄でお掃除ラクラク。従来品に比べ洗浄水量を約7割カット。ウォシュレット機能付トイレ

  • ホスクリーン(室内物干)

    ポールがワンタッチで着脱可能なスポット型物干し。 非使用時は壁掛けフックに収納でお部屋スッキリ。雨や台風のシーズンや花粉の季節でも安心して洗濯物を干せる。急な雨の時もパッと室内に取り込むのに便利。

建材・エアコン・窓

2.4mハイドア

2.4mハイドア

床から天井まである2.4mのハイドアで、空間に開放感をもたらします。

フローリング

フローリング

無垢の風合いと深みを表現した、自然を感じる床材です。

  • 高性能エアコン

    高い省エネ性と充実の機能を兼ね備えたハイスペックモデル。熱交換器加熱除菌でエアコン内部もお部屋の空気も清潔。AIでオーダーメイドの快適を実現。

  • アルミと樹脂のハイブリット構造で高断熱と結露軽減を実現。ガラス面は高遮熱仕様のアルゴンガス入りLow-E複層ガラスを採用。

収納

パントリー

パントリー

食料品やペットボトルの飲料はもちろん、普段使わない調理器具や分別用ごみ箱も置けるので、キッチン周りをすっきり綺麗に保てます。

ウォークインクローゼット

ウォークインクローゼット

洋服や小物がしっかり収納できる大型の収納空間を確保しました。居室をすっきり保ち、より広さを感じていただけます。

  • 玄関収納

    扉を閉めれば玄関はいつも綺麗。土間なのでベビーカーや砂のついたおもちゃもそのまましまえます。
    ※物件により異なります。

  • 姿見付大型シューズボックス

    靴収納量は50足以上。家族みんなの履物や備品をしっかり収納。
    ※物件により異なります。

  • 洗面室物入

    タオルや着替え、洗剤のストック品など何でも収納できる大きな物入。

  • 1階トイレ収納

    ペーパーホルダー脇の収納キャビネットに加え、備え付け収納を設置。トイレットペーパー(12個入)を袋ごと収納できる奥行を確保しています。
    ※物件により異なります。

  • 所在地

    愛知県安城市古井町上寺13-21他

  • 販売価格

    4,980万円 (税込) ~
    5,130万円 (税込)

  • 建物構造

    D・G棟:木造瓦及びガルバリウム鋼板葺2階建、E・F棟:木造瓦葺2階建

  • 土地面積

    170.90m2(51.69坪) ~
    256.91m2(77.71坪)

  • 建物面積

    140.45m2(42.48坪) ~
    141.62m2(42.84坪)

  • 販売戸数

    4 戸

  • 総戸数

    7 戸

  • 完成時期

    2026年5月予定(D・E棟)、2026年6月予定(F・G棟)

  • 用途地域

    第一種中高層住居専用地域(建ぺい率60%・容積率150%)

  • 設備

    公営上下水道、中部電力(オール電化)

  • 開発許可

    指令6建築第4-1号

  • 建築確認
    番号

    第R06確認建築愛建住セ11399号(2025.3.24)他

  • 私道負担

    D棟2.62㎡、E棟82.14㎡、F棟84.69㎡、G棟1.46㎡(各々土地面積に含む)

  • 通行地役権

    D棟の土地面積のうち2.62㎡はE・F・G棟の通行地役権、E棟の土地面積のうち82.14㎡はD・F・G棟の通行地役権、F棟の土地面積のうち84.69㎡はD・E・G棟の通行地役権、G棟の土地面積のうち1.46㎡はD・E・F棟の通行地役権が各々設定されます。

  • 敷地延長部分

    E棟82.14㎡、F棟84.69㎡(各々土地面積に含む)

  • その他制限事項

    日影制限有

  • 取引態様

    売主

  • その他

    ・諸経費が別途必要となります。詳細については係員までお問合せ下さい。
    ・掲載の間取り図・区画図は計画段階のものを基に描き起こしたもので、実際とは異なる場合がございます。
    ・所要時間は地図上の概測距離を80m=徒歩1分、250m=自転車1分で計算したものです。
    ・駐車台数は、区画図または各間取り図に表示の自動車サイズを想定しております。車種によっては駐車台数が異なる場合があります。
    ・内観写真内の家具はモデル用又はCG加工によるものであり、実際の物件には付属していません。
    ・引渡し可能時期は、完成時期以降となります。
    ・次回更新予定日:情報提供日より14日以内、取引条件の有効期限:情報提供日より2か月以内

  • ※情報提供日 2026年04月27日

見学予約

ご希望の日時をお選びください

○:即時予約可能 ■:リクエスト予約(仮予約)
×:予約不可日 TEL:お電話でお問合せください

お問い合わせ・資料請求

【岡崎支店】

0120-19-1183

※こちらをタップするとお電話が可能です

受付時間 | 10:00~19:00

資料請求はこちら

お気に入り物件に追加

ゆとりの新生活